| 작품명 | 1 ⊃ 9 (ONE, NINE) |
| 주요용도 | 집합주택 (9세대) |
| 소재지 | 도쿄도 시나가와구 (東京都品川区) |
| 설계 | 미야사키 히토시 (宮崎均) + REP研究所 |
| 설계기간 | 1997.12. ~ 1998.7. |
| 구조 | ACT構造設計社 |
| 주요구조 | 철근 콘크리트조 |
| 시공(건축) | 岩本組 |
| 공사기간 | 1998.7. ~ 1999.3. |
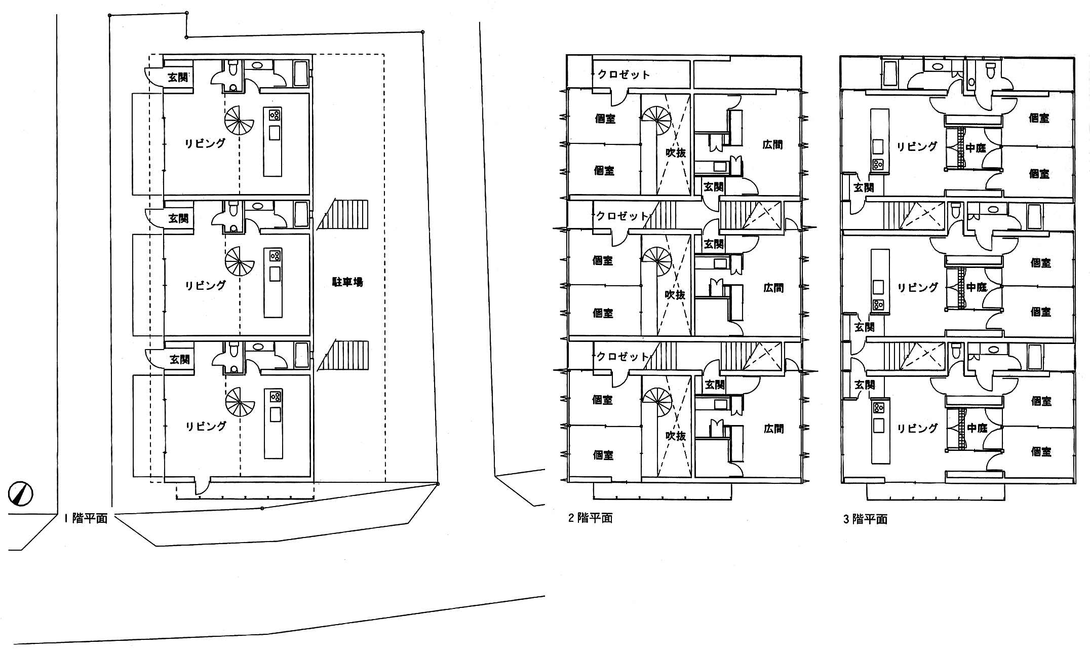
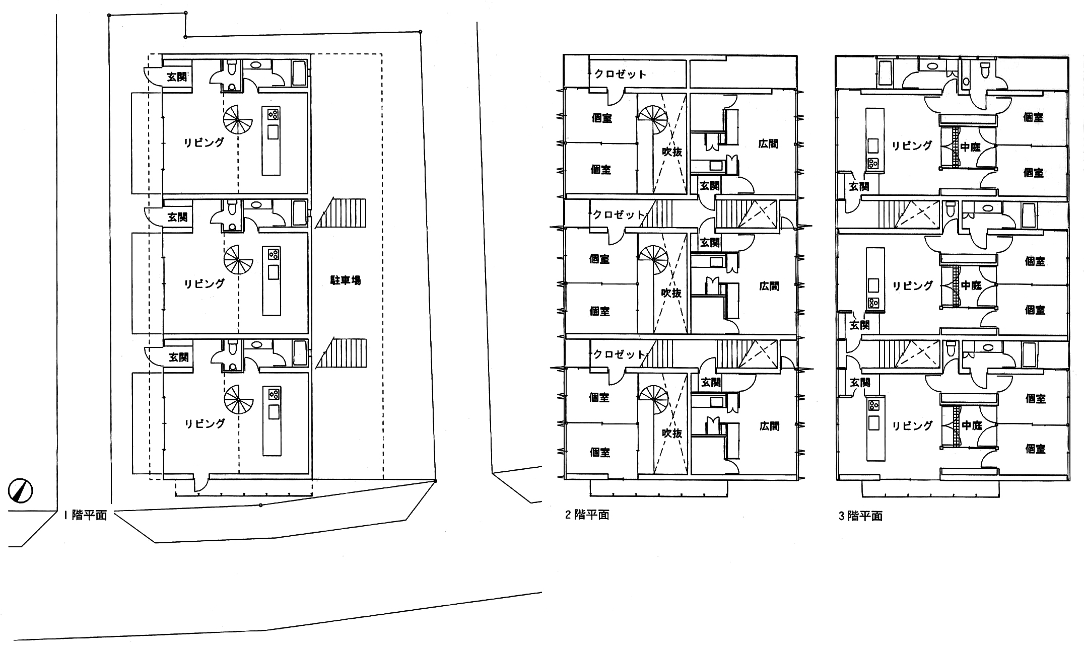
| 규모 | 지상 3층 |
| 부지면적 | 383.37㎡ |
| 건축면적 | 242.22㎡ |
| 연면적 | 590.22㎡ |
| 건폐율 | 68.4% (70%) |
| 용적율 | 166.6% (200%) |
| 지역지구 | 제1종주거전용지역, 준방화지역 |


















대지 주변은 구획정리가 되지 않은 일본의 주택가에서 흔히 볼 수 있는 전형적인 미로와 같은 좁은 가로, 스케일이 맞지 않은 건축군, 세분화된 필지가 특징인 주택가의 모습이다.
대지는 직사각형 모양으로 대지의 장변에 접하는 막다른 골목이 실질적인 정면도로, 동측에는 바로 근처에 초등, 중학교과정 통합 공립학교와 이어진 통학로가 있다. 통학로인 동시에 인근역을 이용하는 주변 주택가 주민들의 주된 출퇴근용, 일상적인 생활도로로 쓰이는 듯한 편도 1차선 도로가 있다.
대지는 서측 및 동측 2개의 막다른 골목과 남측의 통과도로 이렇게 3면이 도로에 의해 둘러싸여있다.
주변 인근 주택가는 학교와 공공기관을 제외하면 대부분이 작은 스케일의 단독주택, 소규모 저층 아파트가 대부분인 듯 하다.
1인(일부는 2인까지 가능할 듯) 가구를 상정한 듯한 총 9개의 주호가 3가지 타입(메조넷, 원룸타입1, 2)의 3개 주호를 한세트씩 2개의 계단실에 의해 분절시켜 3세트로 계획되었다.
3층 주호는 서측 및 동측, 그리고 중심의 중정으로 자연광을 받아들이고 있는데, 원형계단으로 이어진 1,2층 메조넷 주호, 면적이 가장 작은 2층 부분의 원룸의 3가지 타입의 주호 중 가장 쾌적하고 여유있계 계획된 평면인 듯 하다.
중정의 바닥의 일부는 글래스블럭으로 메조넷 주호의 천정으로 자연광을 비추고 있는데 효과는...






'■현대 일본 도시주택 > 1990~' 카테고리의 다른 글
| 아반도네 하라 (アバンドーネ原,Abandone Hara), UR도시기구(都市機構),1996 (0) | 2016.05.19 |
|---|---|
| 힐사이드 테라스(ヒルサイドテラス,Hillside Terrace), 마키 후미히코(槇文彦), 1969~1998 1차답사(1) (0) | 2016.05.16 |
| 신택스(SYNTAX), 기린 플라자/ 다카마츠 신(高松伸, Shin Takamatsu) (0) | 2016.04.29 |
| 롯코집합주택1~3기(Rokko Housing) / 안도타다오(安藤忠雄) (2) | 2016.04.28 |
| 고베의 주택가를 고베답게 하는 스몰 하우징 - TERRAZZA 아시야가와 (TERRAZZA 芦屋川) / 히라가 히사오 (平賀久生, Hiraga Hisao) / 1996 (0) | 2015.10.11 |