2016/06/19 - [일본건축(주택외)/기타] - 도쿄전역은 세계문화유산 - 메이지신궁 도시 녹지축
2016/06/24 - [일본건축(주택외)/상업시설] - 오모테산도힐즈(表参道ヒルズ, Omotesando Hills),안도타다오(安藤忠雄)(1)
2016/06/25 - [일본의도시주거/日本の都市住宅/~1949] - 오모테산도힐즈(Omotesando Hills)- 도쥰카이 아오야마 아파트(同潤会青山アパート)(2)
2016/06/26 - [일본건축(주택외)/상업시설] - 도시의 기억 - 오모테산도힐즈(Omotesando Hills), 안도타다오(安藤忠雄) (3)
- 안도타다오(安藤忠雄) (의역)
■■■ 도시의 기억
1927년 세워졌던 도쥰카이 아오야마 아파트의 재건축계획이다.
관동대지진(関東大震災) 후에 부흥주택으로서 일본 최초로 본격적인 철근 콘크리트조로 건설된 도쥰카이 아오야마 아파트는 중정을 중심으로 한 주동 배치, 도시경관을 배려하는 파사드 디자인 등으로 일본 집합주택 건축의 선구적인 최고 걸작으로 높은 평가를 받고 있었다.
그에 더하여 아파트가 만들어내는 가로경관은 주변 거리를 지나던 사람들의 마음 속의 풍경으로서 빠질 수 없는 존재였다.
이와같은 위대한 도시유산을 어떠한 모습으로 <남겨 전해 줄 것인가>가 이 계획의 주제였다.
그 모습 그대로의 수복 재생은 물리적, 경제적으로 불가능했지만 재건축이 <도시의 기억>의 상실이 되버려서는 안된다고 생각했다.
따라서 우리는 이 상업 스페이스와 주택 스페이스의 컴플렉스에 「지하공간을 최대한 활용하여 건축 볼륨의 반 이상을 매설, 건물의 높이를 전면도로의 가로수와 비슷할 수 있도록 최대한 억제할 것.」,「옛 아파트의 중정공간을 힌트로 오모테산도를 건물 내로 끌여들여 또 하나의 길이 될 수 있는 퍼블릭 스페이스를 만들 것.」 등, 몇 가지의 커다란 목표를 설정하여 계획을 조정해 나갔다.
당연히 주거부분은 소재, 구법 모두 현대적인 이미지를 바탕으로 디자인했지만, 부지 남동측 끝의 오모테산도 교차로 가까이의 1동(도쥰칸(同潤館))은 과거에서 오늘로의 시간의 흐름을 식재하듯이 가로경관에 새기고자하였던 생각의 결과이다.
■■■ 마음의 숲
건물은 오모테산도를 따라서 약 250m 길이의 연속되는 파사드로 되어있다.지하3층~지상3층을 꿰뚫는 건물 중심의 퍼블릭 스페이스는, 완만한 경사의 슬로프로 묶여져, 또 하나의 길을 건물 내에 만들어내고 있다. 그 위에 콘크리트 입체 프레임에 의한 리드미컬한 디자인의 주택 공간이 얹혀진다.
깊게 잘려나간 전면의 주 개구부로부터는 느티나무 가로수의 차경(借景)을 감상할 수 있다.
옥상에는 전면도로를 따라서 늘어서 있는 느티나무 가로수와 연결되는 듯한 모습으로 옥상녹화가 이루어져 있다.
따라서 접지성(接地性)이 약하다 하더라도 항상 가로와 일체감을 느낄 수 있는 주택에서의 생활이 가능하다.(이 장소에서 밖에 향유할 수 없는 녹지공간으로 둘러쌓인 집합주택을 의도했다.)
건물의 완성 후, 녹지공간과 함께 새로운 도쥰카이 아파트가 거리에 숨결을 불어 넣을 때, 가로를 걷는 사람들이 '마음 속에 있었던 숲이 어느새 돌아와 있구나'라고 반겨줄 수 있는 건축이 되었으면 한다.
■■ 오모테산도 힐즈 내부
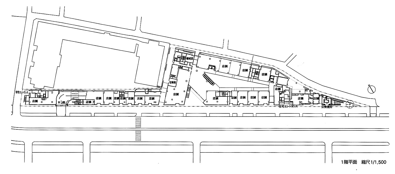
■■ 오모테산도 힐즈 평면도 등.




■■■ 오모테산도 힐즈 젤코바 테라스(Omotesando Zelcova Terrace)(일부)(출처 : 森ビル홈페이지)













'■ 현대 일본 건축 (주택외) > 상업시설' 카테고리의 다른 글
| 전통과 현대목조기술의 조화 : 스타벅스 다자이후텐만구 오모테산도점, 쿠마켄고 (0) | 2016.08.05 |
|---|---|
| 달토끼의 고향(月のうさぎの里(구 우루시쿠라(旧 うるし蔵)) (0) | 2016.07.01 |
| 재건축과 보존 - 오모테산도힐즈(Omotesando Hills), 안도타다오(安藤忠雄) (2) (0) | 2016.06.26 |
| 오모테산도힐즈(表参道ヒルズ, Omotesando Hills),안도타다오(安藤忠雄)(1) (0) | 2016.06.24 |
| 녹원도시 ARCUS(緑園都市 アーカス), 야마모토 리켄(山本理顕 Yamamoto Riken), 1993 (0) | 2016.05.31 |