| 작품명 | 오로라 (Aurora) |
| 주요용도 | 집합주택 |
| 소재지 | 도쿄도 분쿄구 (東京都文京区, Tokyo Bunkyouku) |
| 설계 | 쿠로사와 타카시 (黒沢隆研究室+早見プラザ一級建築事務所, Kurosawa Takashi) |
| 설계기간 | 1987.9. ~1989.5. |
| 구조 | 小崎修二 |
| 주요구조 | 철근 콘크리트 벽식구조 (외단열구체축열방식外断熱躯体蓄熱方式) |
| 시공(건축) | 南建設 |
| 공사기간 | 1988.4. ~1989.6. |
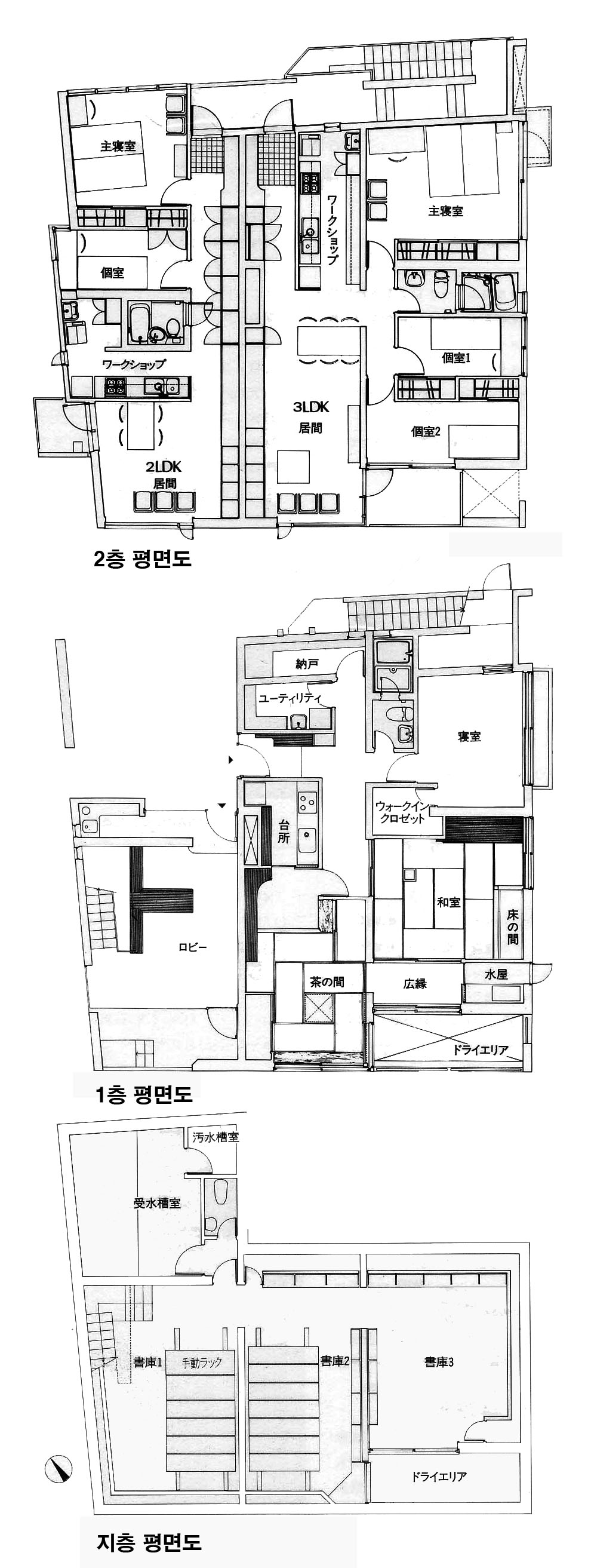
| 규모 | 지하1층, 지상3층 |
| 부지면적 | 339.88㎡ |
| 건축면적 | 173.05㎡ |
| 연면적 | 535.40㎡ |
| 건폐율 | - % |
| 용적율 | - % |
| 지역지구 | 제2종주거전용지역, 제2종고도지구 |





「개인용 거주단위(個人用居住単位)」는 집합주택이라는 주택형식을 취함으로서 성립조건의 일보를 내딛게 된다.
한편, 가족타입에서는 단독주택이 하나의 주택형식으로서 이미 성립되어왔기 때문에, 새삼스럽게 단독주택을 집합주택으로 재편하는 것은, 상당한 탐구를 필요로 한다.
「집합의 계기(集合の契機)」론이라고 흔히들 말을 하지만, 이에 대한 논의를 확실히 해 두지 않으면 집합주택의 계획이란 것은 근거없는 허구의 것이 되어 버린다고 생각한다.
1970년대의 논의를 통하여, 쿠로자와연구실(黒沢研究室)에서는 다음과 같은 전망을 내놓았다.
① 집합주택 계획에 있어서, 장기적인 목표로 커뮤니티 형성을 지향한다. 여기에는 정신적인 과제도 포함한다.
② 당면한 과제로서는 함께 모여사는 것에 의한 시설적인 메리트를 철저하게 추구한다.
③ 집합주택에 있어서도, 주호설계에 있어서는 『주택의 역설(住宅の逆説)』 규격을 벗어나지 않는다.
당연히 (필자(쿠로자와타카시)는) 「개인용 거주단위(個人用居住単位)」를 중심으로 하는 일군의 집합주택 속에, 조금씩 가족타입도 혼재시키면서, 이들 전망에 다다를 생각이다.
이번 작품(Aurora(アウローラ))에서는, 「코완 키 손느(Coin Qui Sonne)」에서 평가를 확립시킨 「외단열 구체 축열 방식(外断熱躯体蓄熱方式)」을 다시 채용하였다.

2015.10.20 - [■(도시주택)건축가] - 黒沢隆(쿠로사와 타카시)
黒沢隆(쿠로사와 타카시)
黒沢 隆(쿠로자와 타카시 くろさわ たかし、1941 - 2014.03.15) 日本の建築家。住宅作家。建築評論家。東京生まれ。多くの建築家(仙田満、内藤廣、塚本由晴など)を輩出している戦後日本に
protocooperation.tistory.com
내부에서 발생한 열이나 냉기를 구체에 가두어 놓아, 자연스럽게 건강한 열환경의 형성을 의도하였다. 외장의 동판(銅板)은 이러한 외단열재의 조절장치(ウェザーカバー)이다.
또한, 제2심야전력과 도시가스를 혼용한 건물중앙급탕(棟セントラル給湯)을 개발하여 처음으로 적용하였다.
각 주호에 세탁기와 가스열원 건조기를 유니트로 설치 세탁 배수구, 전용가스전, 건조기배기구 등의 설비는 앞의 「코완 키 손느」와 동일하다.
발코니에서의 빨래건조는 되도록 하지말 것을 거주자들에게 요청하고, 주요 개구부에는 통일된 브라인드를 설치, 이런 것들을 통해서 공동체로서의 집합주택의 형성을 의도하려 하였다.
이전의 단독주택 설계 등에서 다용했던 붙박이 가구도 각 개실에 배치하였다.
1층은 오너의 주호, 지층에는 3세대에 걸친 학자 일가의 공동 서고 겸 서재를 배치하였다.
특히, 지층은 습도조절기(humidistat)와 연동한 방습용 바닥난방의 채용 등 방습에 유의하였다.
(大塚聡介)











