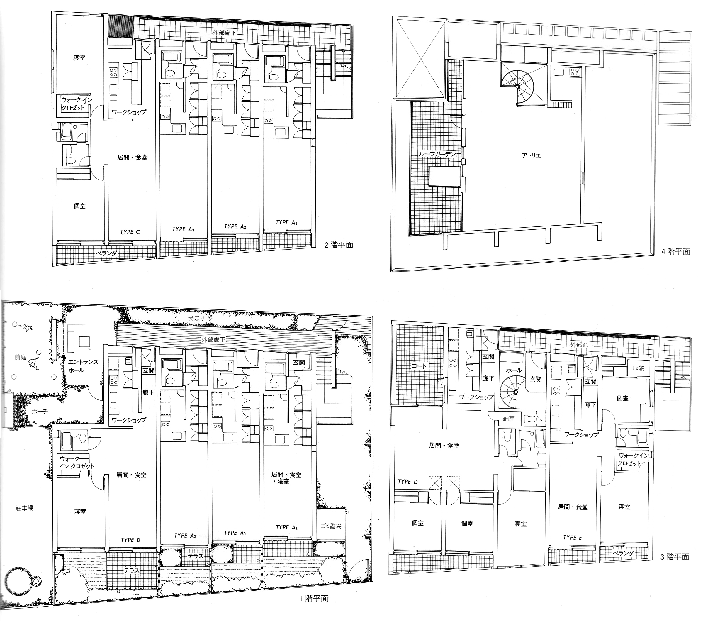
| 작품명 | 코완 키 손느(Coin Qui Sonne) |
| 주요용도 | 집합주택(전용주택2호 + 임대주택8호 + 스튜디오) |
| 소재지 | 도쿄도 스기나미구(東京都杉並区, Tokyo Suginamiku) |
| 설계 | 쿠로사와 타카시 (黒沢隆研究室, Kurozawa Takashi) |
| 설계기간 | 1985.7. ~ 1985.12. |
| 구조 | 日本大学理工学部小野新研究室 |
| 주요구조 | コンクリート薄肉ラーメン構造 |
| 시공(건축) | 南建設 |
| 공사기간 | 1986.1. ~ 1986.11. |
| 규모 | 지상4층 |
| 부지면적 | 358.66㎡ |
| 건축면적 | 207.07㎡ |
| 연면적 | 573.57㎡ |
| 건폐율 | 60% (60%) |
| 용적율 | 160% (200%) |
| 지역지구 | 제2종주거전용지역, 제2종고도지구, 준방화지역 |




서고가 있는 집합주택 - 오로라(アウローラ, Aurora) / 쿠로사와 타카시(黒沢隆, Kurosawa Takashi) / 1989
작품명오로라 (Aurora)주요용도집합주택소재지도쿄도 분쿄구 (東京都文京区, Tokyo Bunkyouku)설계쿠로사와 타카시 (黒沢隆研究室+早見プラザ一級建築事務所, Kurosawa Takashi)설계기간1987.9. ~1989.5.구조
protocooperation.tistory.com
2015.10.20 - [■(도시주택)건축가] - 黒沢隆(쿠로사와 타카시)
黒沢隆(쿠로사와 타카시)
黒沢 隆(쿠로자와 타카시 くろさわ たかし、1941 - 2014.03.15) 日本の建築家。住宅作家。建築評論家。東京生まれ。多くの建築家(仙田満、内藤廣、塚本由晴など)を輩出している戦後日本に
protocooperation.tistory.com
■ 원룸 - 6평(坪)에서 10평으로
지면 특성상, 가급적 부동산과 관련된 이야기는 쓰고 싶지않다. 하지만 부동산 업계와 관련된 지식을 어느정도 가지 않으면, 지금의 집합주택을 이해하기에는 어려움이 따르는 것이 사실이다. 근대건축의 중심에 「주택」이라는 과제가 있고, 그 핵심에 「집합주택」이 있었던 꿈과 같던 시대는 이미 지나고 없어져 버렸기 때문이다.
예를들어 시장에 공급되어진 집합주택과, 거기에 살게 되는 거주자의 의식(意識)의 괴리는 심한 차이를 보여주고 있다.
지금 거주자의 「의식」이라고 언급했지만, 경제적 요인도 포함하여 「니즈(needs)」라고 바꿔 생각하면, 그 괴리의 차이는 이제 천문학적이라고 말해도 심하지 않을 정도이다. 말할 것도 없이, 공급(供給)하는 측의 이권, 권리만으로 시장(市場)이 구축되어져 버리는 사태가 점점 심해져가기 때문이다.
■ 원룸의 실패
이러한 전형적인 예 중의 하나가 도쿄 중심의 수도권이나 오사카 중심의 긴키권(近畿圈)에서 역에서 도보10분 정도의 거리, 제2종 주거전용지역(第2種住居専用地域)을 주요 타겟으로 하는, <리스맨션(lease mansion)>이라고 불리우는 원룸 비즈니즈다.
처마높이 10m이내에서 4층규모, 5평~6평의 (욕조있는) 화장실 겸 욕실 기본의 원룸이 꾸역꾸역 채워져, 마치 벌집을 연상케한다.
이것이 독자들도 잘 알다시피 분양이라는 형식으로 투자자를 모집하고, 나중에 개발업자가 일괄해서 빌려 재임대하는 분양용 원룸이다.
『빈집정보(空室情報)』나 『아파만정보(アパマン1情報)』와 같은 무료잡지가 바로 그것으로, 당연히 1인가구의 젊은층(単身の若者) 수요를 주요 타겟으로 한다.
한편, 전술한 5평~6평(坪) 이라는 면적은, 1인 거주자(単身者)의 도시생활을 가능케하기 위한 목적의 건축계획을 근거로 설계되어져 공급되어지는 것이 아닌, 일반적인 소득이 있다면 최대한 지불할 수 있는 정도의 임대료로 운영할 수 있는 정말로 최소한(最小限)의 면적인 것이다.
'평당 임대료 얼마'라는 상식을 훨씬 초월하기 때문에, 건물 외장만이 타일마감 등으로 눈가리고 아웅식으로 그럴 듯하게 꾸며져있다.
이런식으로 투자 가치 효율만 최대한으로 추구해간다.(복도폭, 피난규정, 칸막이 증설 등, 기본적인 소방법, 건축기준법 등도 지켜지지 않고 불탈법으로 운영되는 영세 고시원 등은 거주수준을 논할 수 있는 대상이라고 말할 수도 없으며, 소위 중산층 이상에게 가장 인기라는 우리나라의 아파트 재건축 계획에서 보여지는 주동배치, 높이 등이 '주변환경과의 조화'나 '단지내 쾌적함' 보다는 건설사, 주택조합등 관계자들의 최대한의 투자이익이 건축계획의 주요 결정인자라는 것과 같은 맥락이다.)
따라서, 공적(公的) 공간이 존재할 리가 없다.
자전거나 바이크는 도로에 방치되고, 세탁기는 자기 주호의 발코니에 놓을 수 밖에 없다. (일본은 원룸을 비롯한 영세 임대아파트의 경우 칼코니나 현관 옆에 자기 세탁기를 놓고 사용하는 광경을 자주 목격한다.)
젊은 거주자는 귀가 시간이 일반적으로 늦고, 귀가하고 나서야 세탁기를 돌리는 경우가 많으니, 조용한 심야시간에 세탁 종료 알람이 여기저기에서 울려 이웃 주민들은 짜증을 내게 된다.
또한, 원룸 임대건물의 소유주와 임대인, 임차인이 모두 다르기 때문에 낮에는 건물에 인기척이 거의 없다. 원룸 개실마다 소유주가 제각각이기 때문에, 소음 등 각종 트러블에 대한 주의나 항의를 누구에게 해야하나, 주위에 사는 주민들은 점점 히스테릭한 상태로 빠져들고 만다.
심각한 사회문제가 아닐 수 없다. 북측 사선제한을 위반하지 않는 선에서 최대한 부지 남측으로 건물을 가까이 붙이고, 주채광면이 북측을 향하는 계획도 횡행하고 있다고 한다.
당연한 결과로서, 거주민도 이런 열악한 주거환경에서 장기간의 안정된 거주를 할 수 없으며, 임대 원룸의 평균 거주기간이 겨우 13개월이라는 통계도 있다. 이러한 투자용 원룸의 단기(短期) 임대회전률은 <사례금(레이킨,礼金 )>,<보증금(保証金)>의 짭잘한 수입때문에 투자자들의 투자의욕을 부추기고 있지만, 이러한 행태가 장기간 계속될 리가 없다.
결국, 「원룸」이라는 주거형식의 세간의 평판이 점점 떨어질 수 밖에 없다.
■ 탈(脫) 미니멀리즘
나에게도 회한이 없지않다.
한사람이 도시생활을 영유해가는데 6평 약간 못미치는 면적이 적정규모라고 주장한 것은 다름아닌 본인이었다..
결혼이라는 사회적 제도의 울타리 밖에서, 개인을 단위로 하는 도시생활상(像)을 그려보고자 한 것도 다름아닌 본인이다.
「개실군주거(個室群住居)」론을 주창한 시기가 1968년 즈음이었는데, 나에게 있어서 그 의도는 근대가족비판(近代家族批判)을 하고자 했던 것인데, 시대가 그대로 그런 방향으로 되어버렸다.
20년도 지나지 않아서 「주부」라는 규범은 더 이상 존재하지 않게됐다. 『크레이머 크레이머2』 나 『보통 사람들3』에서 제기되었던 여러문제는 『금요일의 아내들(キンツマ)4』의 이야기, 불륜, 단신부임(単身赴任) 등에서 보는바와 같이 이미 현대 일본의 일상 풍습이 되었다.


앞서 말한 회한이 사회가 이렇게 되어 버린 것에 대한 회한은 아니다.
실제로 「원룸」 현상의 배경에 이러한 사회 정세가 있다는 것은 나 개인으로서는 자랑으로 여길 수도 있지만, 건축의 문제로서는 용납할 수 없는 일이다.
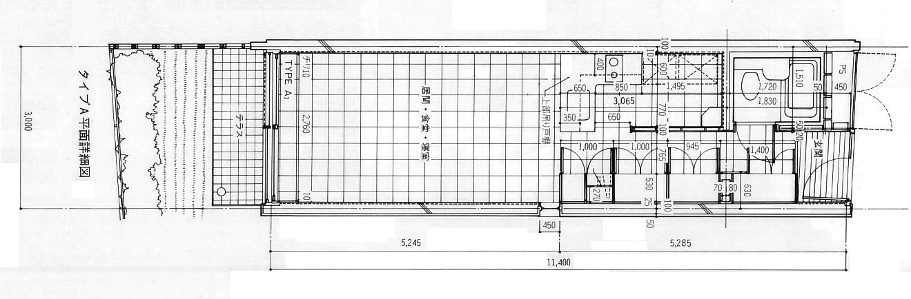
개인용 거주단위는 1:3.4(2.4m x 8.1m)의 프로포션일 때, 거주적정규모를 만족시킬 수 있다고만 했는데, 그 면적이 우연히 6평 남짓이었을 뿐이다. (이것도 공용 서비스 공간을 확보했을 때에 성립가능하다.)
이럴 경우, 대지의 폭이 적어도 12m정도가 확보되지 않으면, 이 평면계획은 성립하지 않는다.
폭10m 남짓의 대지에서 개인용거주단위를 어떻게하면 성립시킬 수 있을까 고민한 작품이 하네다(羽田)의<세비 그린빌리지(せいびグリーンビレッジ)>였다.




장변(長邊)이 6m인 약간 땅딸막한 프로포션의 대지에서 '이 정도면 어느정도 거주가 가능하다'고 생각한 평면계획은 이미 8평에 가까운 면적이었다. 그렇지만 이전 계획만큼 수납공간도 충분하지 않고, 식탁과 책상 중 하나만 선택하여 배치해야할 정도였다. 6평 남짓의 프로토타이프가 얼마나 가다듬고 가다듬은 안(案)이었는지 알 수 있었다.(『도시주택』8303, 『건축지식』8505)
하지만 적정규모(≒최소규모)와 같은 미니멀리즘에서 지금까지 개인용 거주단위를 구상해 왔으나, 디럭스 버전이라고 할까 다양한 평면제안도 좋지 않은가! 하는 생각도 하게되는 계기가 됐다.
예를들면, 어느정도 사회생활도 성숙되고 생활이 안정된 사람도, 여러가지 이유로 혼자사는 생활을 (일부러) 선택할 수 있고 반드시 미니멀리즘만이 절대일 수는 없을 것이다.
■ 분양과 임대의 틈새에서
<세비 그린빌리지>에도 2인용(2人用) 주호가 3호 섞여있었다. 처음부터 계획된 것은 아니고, 평면계획을 진행함에 따라 의도적이지 않게 포함시킬 수 밖에 없어, 신혼부부용이라는 성격을 부여하여 평면계획에 포함시키게 되었다.
이들 2인용 주호는 10평 약간 넘는 면적으로 계획되었으며, 1, 2층에 위치하는 주호는 칸막이를 두어 거실과 침실로 실명을 붙였으나, 3층에 위치하는 주호는 「수퍼 원룸(super oneroom)」이라는 개념으로 칸막이 설치를 하지 않았다. (모든 주호는 발코니로부터의 악세스 형식을 일부러 취하였다.)
이런 3층에 계획한 주호를 과연 누가 빌리는지 흥미로웠는데, 나중에 알고보니 국제선 항공 승무원이 빌렸다고 한다. 사족으로 덧붙인다면 수퍼 원룸을 뭔가 화려한 분위기로 사용하지는 않았고, 일상생활을 약간 여유롭게 즐기기 위해서 빌렸다고 한다.
1,2층에 있던 주호는 모두 부부가 빌렸는데, 그러한 대비가 약간은 신선하게 느껴졌던 것 같다.
한편, 수도권을 메우고 있는 목조 임대아파트(木賃アパート)는 바스룸(bath room) + 6다다미(약3평) 1DK가 일반적인데, 조사에 의하면 정면폭은 약2칸(間, ≒3.8m)으로 약10평, 입지에 따라서 5만엔~8만엔 정도의 임대료를 형성하고 있다. (계획되었던 80년대 중반 일본 물가를 참고)
일반인이라면 여기에서 신혼생활을 시작하지만, 객관적으로 따진다면 1인주거에 알맞은 면적이라고 할 수있다. 평면 구성에 특별한 고민도 없는 것이 보통이기 때문에 더욱 그렇다. 왜, 차라리 서양식(洋間) 원룸으로 하지 않는지 항상 이상하게 생각하지 않을 수 없다.
나의 10평 원룸에 대한 구상은 이러한 의문에서 부터 조금씩 출발했다고 할 수 있다.
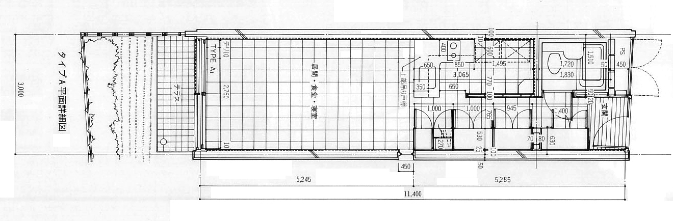
도쿄도 스기나미구 호난쵸(東京都杉並区方南町)에 계획한 <코완 키 손느(Coin Qui Sonne)>의 경우, 오너 주호의 비율이 커서 처음부터 분양을 전제로 기획할 수 밖에 없었다.
시뮬레이션을 돌려 본 결과, 고가의 임대료 수입이 가능한 외국인 대상의 임대라면 가능할지도 모른다는 분석도 나왔지만, 입지(立地)상 어려운 문제였다. 한층에 하나의 주호로 계획하는 소위 「오쿠션(億ション)5」도 근거리에 있는 상업시설(商店街)의 성격을 고려하면 어려운 선택지였다.
그런 가운데 우연히도 부지의 지형이 우리가 연구해왔던 10평 원룸을 실현시키는데 적합했고, 원래 10평 크기의 원룸은 임대하기에도 알맞은 형식이었다.
하지만, 구입한 사람이 직접 실거주한다 라는 전제(前提)라면 분양으로 해도 안되는 것도 아니었지만, 선례가 없었기 때문에 결단에는 용기가 필요했다.
선례가 없었기 때문에 금융기관을 설득하는 것도 난제였으나 어떻게 다행히 금융문제가 해결되어, 이후에는 실거주자들의 구입의욕을 높혀주는 건축으로 어떻게 계획할 것인가에만 전념할 수 있었다. 이러한 프로세스를 부동산 업계에서는 「부가가치」를 높힌다고 말한다.
기획(企画)과, 그 기획에 어울리는 계획(計画). 그 계획을 뒷받침하는 사양(仕様)은 일심동체라고 할 수 있다.
계획한 건축물이 거주자의 의식을 뛰어넘지 못하면 건축가라고 할 수가 없다. (예를들어, <코완 키 손느>가 개인용의 거주단위를 테마로하는 집합주택인 동시에, 세탁실을 공용으로 하지 않은 이유는 분양이기 때문이며, <10평>이었기 때문이다.)
그런데, 금융보증인이 되어준 분이 건축계획 전체를 매우 만족해 한 결과, 오너용 주호 이외의 주호 전부를 매입해버려, 지금은 임대용으로 운용되고 있다고 한다.
따라서 개인적으로 분양용으로 부동산 시장에서 어떤 평가를 받았을지 검증하지 못한 것이 좀 아쉽기는하다.
(黒沢隆)

