|
작품명 |
니시나 치과의원(仁科歯科医院 アーク) / ARK |
||||
|
소재지 |
교토시 후시미구 모모야마쵸(京都市伏見区桃山町) |
||||
|
설계 |
타카마츠 신(高松伸 Shin Takamatsu) |
||||
|
주요용도 |
상업시설(치과 진료소, 갤러리) |
||||
|
주요구조 |
RC조 |
||||
|
설계기간 |
1981.12. ~ 1982.4. |
||||
|
공사기간 |
1982.5. ~ 1983.5. |
||||
|
규모 |
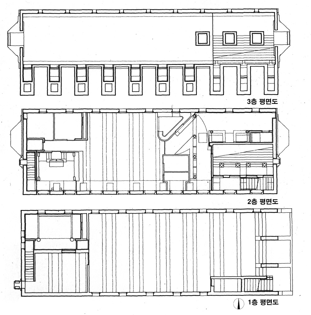
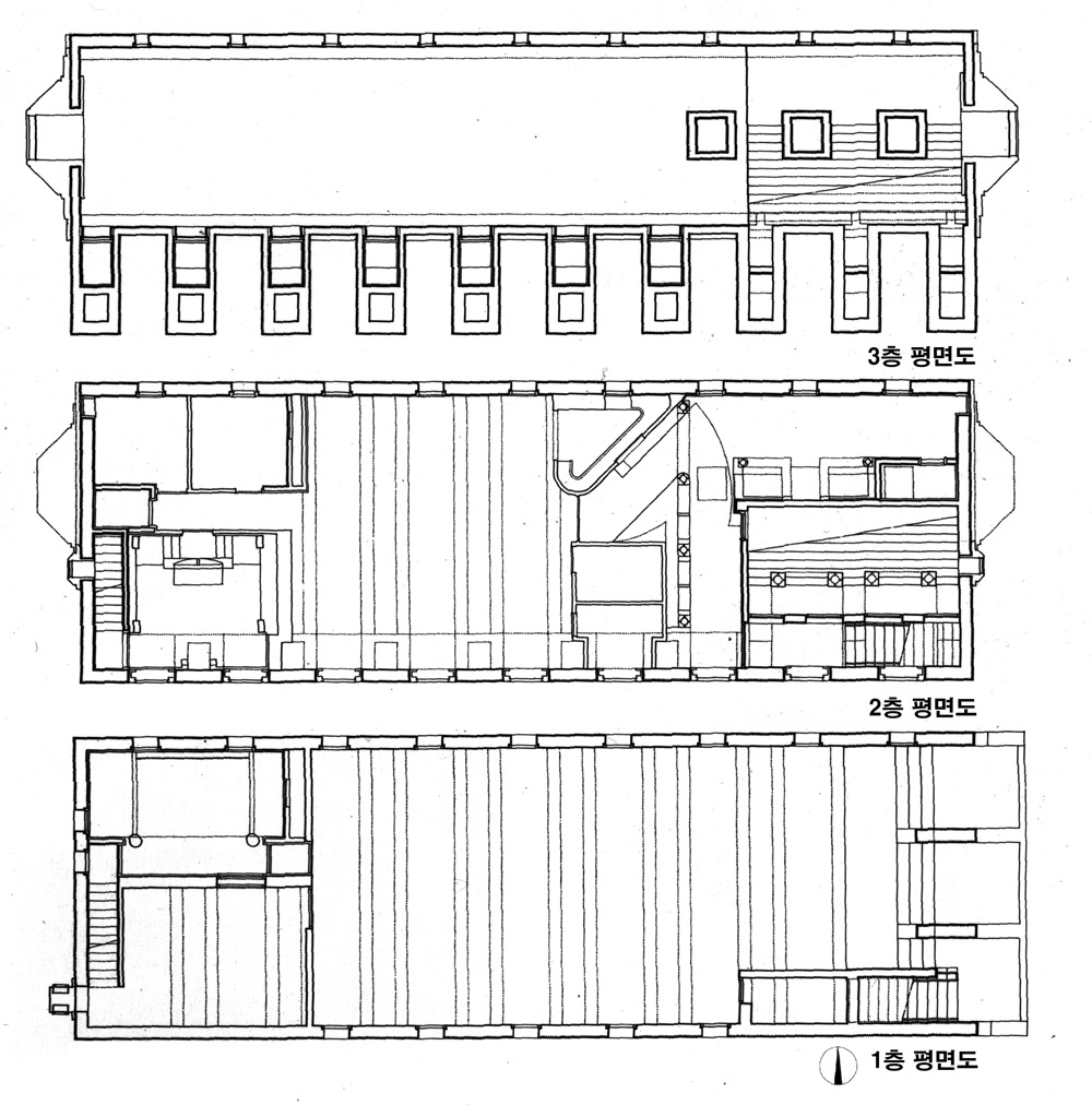
지상3층 |
부지면적 |
372.43㎡ |
||
|
건축면적 |
152.64㎡ |
||||
|
연면적 |
407.17㎡ |
||||

교토역에서 5~6km 정도 남측에 있는 우지선(京阪宇治線) 모모야마 미나미구치역(桃山南口駅) 바로 옆에 선로와 평행하게 세워진 타카마츠 신(高松伸) 설계의 직설법적인 상업건축.
타카마츠 신의 설명처럼 레트로 퓨쳐(Retro-futurism), 스팀 펑크(steampunk) 문학 쟝르적인 증기기관차를 연상시킨다.
건물의 완성이 1983년 이었으니 관계가 없었겠지만, 나는 보는 순간 아키라(AKIRA)로 유명한 오오토모 카츠히로(大友克洋) 감독의 스팀보이(steamboy, 2003)를 떠올렸다. 근대과학 메카니즘에 대한 로망.
2019/07/11 - [■처음] - 과거, 현재, 미래 도시에 대한 OST 모음(in progress)
과거, 현재, 미래 도시에 대한 OST 모음(in progress)
■ 심야식당 Midnight Diner: Tokyo Stories - Opening [HD] ■ 공각기동대 Ghost in the Shell Nightstalker ■ 멀홀랜드 드라이브 Ending/Love Theme - MULHOLLAND DRIVE ■ 아키라 Akira Opening Bike Sequenc..
protocooperation.tistory.com
노출 콘크리트 마감의 단순한 직사각형 볼륨위, 장변의 양단에 부착된 거대한 금속제의 원형 실린더.
그 옆에는 마치 기적소리를 올려며, 푸른 하늘을 배경으로 흰 연기를 뿜어낼 듯한 연통을 연상시키는 10개의 톱라이트.
내부공간 구성과 단절된, 외부 파사드와 형태.
이제껏 많은 건축답사를 해왔지만, 대부분 준공당시에는 그럭저럭 패셔너블(?)하게 보이던 건축이더라도, 불과 5년, 10년도 지나지 않아서, 구태의연하고 시대에 뒤떨어진 모습을 보여주는 사례를 수 없이 보아왔다.
이러한 건축 디자인에 대한 호불호는 나뉘겠지만, 이도 저도 아닌 어설픈 파사드 디자인이나 디테일에 의한 직설화법이 아닌, 무엇보다 지어진 지 30년도 더 지난 지방 소도시의 상업 건축에서 정밀한 디테일과 금속성 쾌감을 느끼는 것에는 부인할 수가 없었다.















