|
작품명 |
교토 폰토쵸 찻집 (先斗町のお茶屋) / Yoshida Haouse |
||||
|
소재지 |
교토후 교토시 쵸(京都府京都市町) |
||||
|
설계 |
타카마츠 신(高松伸 Shin Takamatsu) |
||||
|
주요용도 |
상업시설(찻집) |
||||
|
주요구조 |
RC조 |
||||
|
설계기간 |
1981.6. ~ 1981.11. |
||||
|
공사기간 |
1981.11. ~ 1982.5. |
||||
|
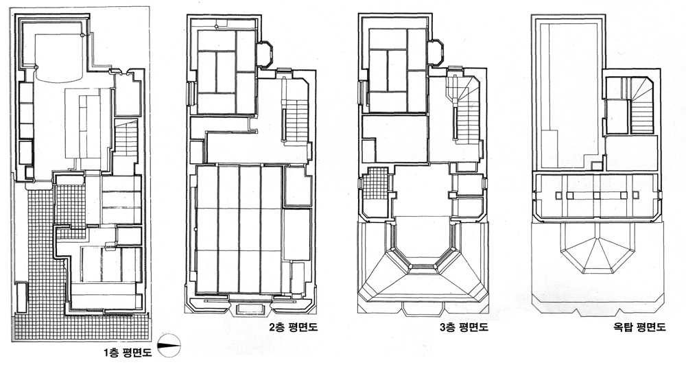
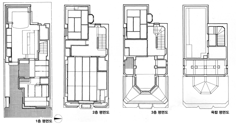
규모 |
지상4층 |
부지면적 |
78.52㎡ |
||
|
건축면적 |
62.09㎡ |
||||
|
연면적 |
183.94㎡ |
||||

■ 폰토쵸(先斗町)
교토시 나카교구, 카모가와(鴨川)와 안도 타다오의 타임즈가 있는 타카세가와(高瀬川) 사이에 있는 남북으로 4~500m 정도 되는 좁은 로지(路地≒골목길)가 인상적인 상업가.
2016/04/15 - [■ 현대 일본 건축 (주택외)/상업시설] - TIME'S, 타임즈, 안도타다오(Ando Tadao), 1984,1991
TIME'S, 타임즈, 안도타다오(Ando Tadao), 1984,1991
작품명 타임즈(TIME'S), 안도타다오(安藤忠雄), 1984,1991 소재지 京都府京都市中京区大黒町(三条通河原町東入中島町92) (Kyotofu Kyotoshi Nakagyoku Daikokucho) 설계 安藤忠雄(안도 타다오) 준공: 1984(I). 199..
protocooperation.tistory.com
일본의 행정구역 단위인 쵸(町) 가 이름이 있지만 행정구역으로서의 지명은 아니다.
좁은 로지의 양측으로 전개되는 음식점 등 상점가의 정취는 대규모 재개발로 지금은 사라진 예전 종로의 피맛골(避馬골)의 추억을 되살린다.(저녁 때가 되면 여기저기서 고등어 굽는 냄새가 직장인들의 퇴근 길을 멈추게하고 동료들끼리 식사겸 한잔하게 만드는 종로의 피맛골이 더 꾸밈없이 서민적이고 푸근한 느낌이 아니었나 싶기도 하다)
깨끗하고 화려하고 세련된 관광지 보다는 이런곳이야말로 교토라는 도시의 그 도시만이 가지고 있는 정취가 아닌가 싶다.


이 거리가 형성되었을 시기에는 일본인의 평균 신장이라든가 체격, 도시계획 기준 등도 관여된 스케일이었겠지만, 국제적인 관광도시로 항상 사람들로 붐비는 지금, 일본인의 평균 신장의 변화도 그렇고, 190cm 가까워 보이는 건장한 서양 관광객들에게는 불편하겠다는 생각도 들 정도로 매우 좁은 로지가 특징이다.
위키페디아를 읽어보니 ,예전에는 환락가로서 발달했었다고 한다.
예전에는 기녀(技女) 등이 많이 거주했듯이 유흥, 공연 등의 상업형태가 많았으나, 지금은 일반 음식점, 토산품 등 관광객이 쉽게 이용할 수 있는 일반 상점들이 늘어서 있다.


전술한 폰토쵸 거리에 면한 부지는 전면 폭 6m, 안길이 13m의 협소 부지로, 이러한 부지의 장소성, 물리적 특성등을 고려하지 않을 수 없었다.
한편, 일본(교토)의 찻집(お茶屋)은 예로부터 이어져온 격식과 예(禮) 등에 따른 특유의 공간구성 작법이 존재하는데, 설계자는 지금까지 수평적으로 형식화되어 왔던, 찻집이라는 건축형식의 시스템, 의장등을 존중하면서, 찻집에 필요한 일련의 공간들을 수직적으로 연장 전개시키고자 하였다고 한다.










