|
작품명 |
YKK 오카야마(YKK岡山) / YKK Okayama |
||||
|
소재지 |
오카야마현 오카야마시 니시시(岡山県岡山市西市) |
||||
|
설계 |
타카마츠 신(高松伸 Shin Takamatsu) |
||||
|
시공(건축) |
쿠마가이구미 히로시마 지점(熊谷組広島支店) |
||||
|
구조 |
야마모토, 타치바나 건축설계 사무소(山本・橘建築設計事務所) |
||||
|
주요용도 |
사무소, 창고 |
||||
|
주요구조 |
철골조 |
||||
|
설계기간 |
1992.4. ~ 1992.12. |
||||
|
공사기간 |
1993.2. ~ 1994.6. |
||||
|
규모 |
지상3층 |
부지면적 |
1652.95㎡ |
||
|
건축면적 |
333.83㎡ |
||||
|
연면적 |
610.01㎡ |
||||
| 건폐율 | 20%(60%) | ||||
| 용적율 | 37%(200%) | ||||
| 지역지구 | 준공업지역 | ||||
| 외부마감 |
지붕 : シート防水(一部トップライト) |
||||

안도 타다오가 설계한 오카야마시(岡山市) 소재의 학교건축(환태평양 대학(環太平洋大学, IPU(International Pacific University), 2013~)을 방문했다가 우연히 발견해서 오후 해질녁에 부랴부랴 답사한 타카마츠 신(高松伸) 설계의 소규모 사무소 건축.
오카야마역에서 4km 정도 남측으로, 오카야마역에서 우노센(宇野線)을 타면 두정거장 거리에 위치한 일본을 대표하는 비철금속 메이커, 건축 관련 종사자에겐 건축자재로 유명한 (주)YKK의 오카야마 지점 사옥이다.
스케일이 애매한 것이 타카마츠 신 작품의 특징 중의 하나이기도 하지만, 절대적인 외형의 매스 용적만으로만 본다면 규모는 그다지 크지 않아 보인다.
소규모이긴 하지만, 건물이 위치하는 부지는 굳이 차선을 세어보지 않더라도, 교통량과 차량의 스피드가 느껴지는 간선 도로(국도2호선国道2号線)에 접하고 있다.
크지않은 직방형의 상자는 무창의 외벽으로 심플하게 덮혀 건물전체의 스케일감을 느끼지 못하는데, 아마도 보행자 보다는 간선도로를 빠르게 달리는 차량들을 의식한 디자인임을 느끼게 한다.
무창의 알루미늄 스팬드럴(spandrel) 마감의 상자는 양단의 코너부가 시원하게 절삭된 알루미늄 커튼월 내부로 엿보이는 수직 이동 동선에 의해 내부공간의 규모를 짐작케한다.
커튼월 사이로 보여지는 원색의 계단들은 나머지 가려진 내부공간에의 호기심을 유발시킨다.
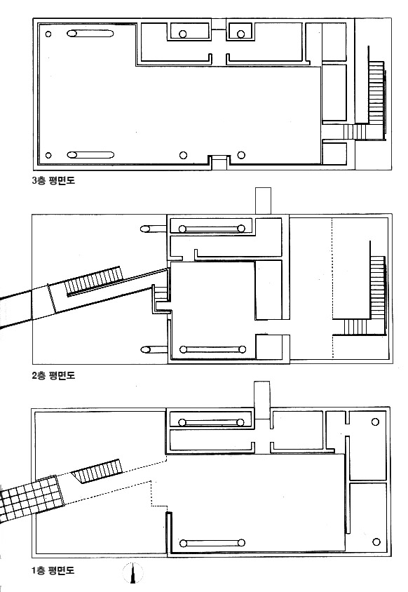
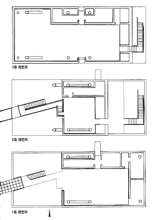
(평면은 사무소 건축답게 단순 명쾌하고 기능적인 공간이다.)
부분부분 강렬한 원색으로 채색된 캐노피, 계단, 기둥 등이 무표정한 상자에 활기를 넣어주고 있는 느낌이다.


















