|
작품명 |
시마네현립 산업 교류회관 쿠니비키 쿠니비키 메쎄 (島根県立産業交流会館・くにびきメッセ) / Kunibiki Messe |
||||
|
소재지 |
시마네현 마츠에시 가쿠엔미나미(島根県松江市学園南) |
||||
|
설계 |
타카마츠 신(高松伸, Shin Takamatsu) |
||||
|
주요용도 |
전시장, 국제 회의장, 사무실 |
||||
|
주요구조 |
SRC조, RC조, S조 |
||||
|
설계기간 |
1990.6. ~ 1991.7. |
||||
|
공사기간 |
1991.12 ~ 1993.8. |
||||
|
규모 |
지하1층, 지상5층, 옥탑1층 |
부지면적 |
27032.06㎡ |
||
|
건축면적 |
8931.87㎡ |
||||
|
연면적 |
15916.78㎡ |
||||

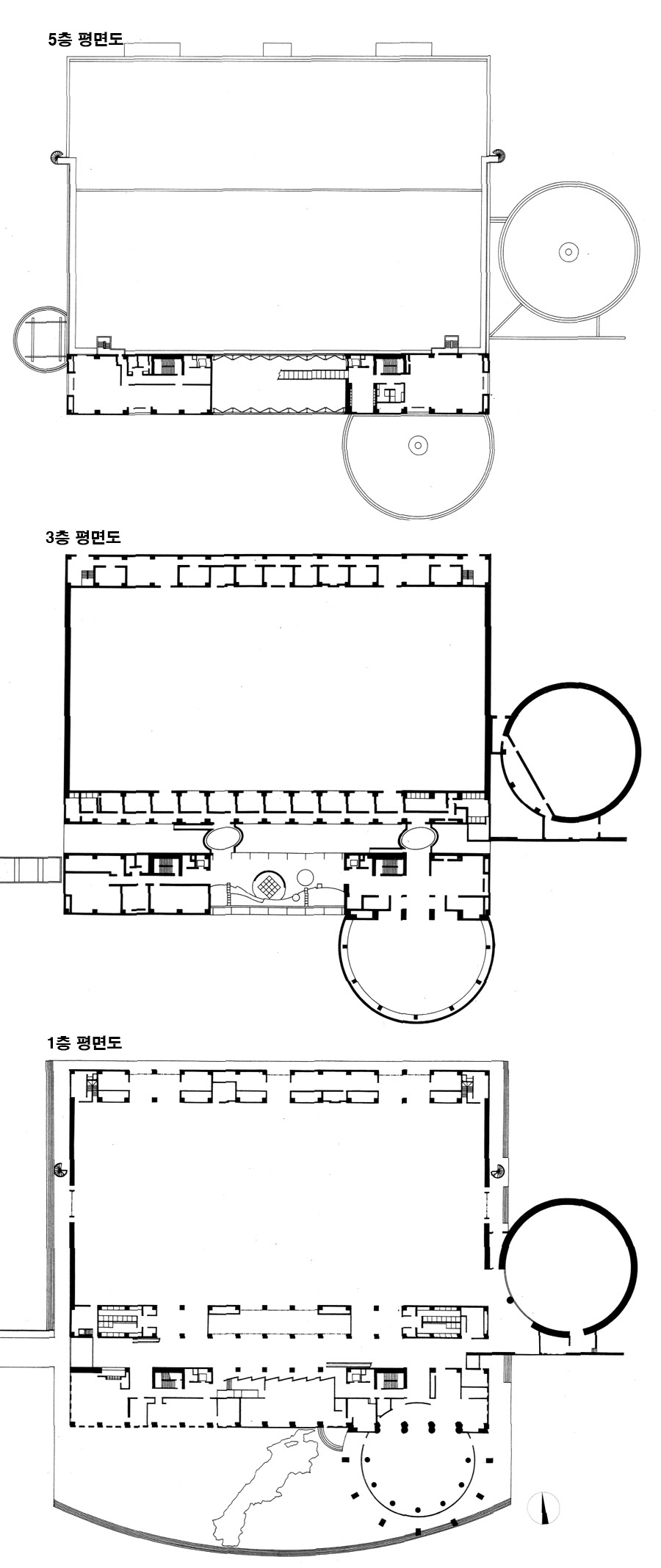
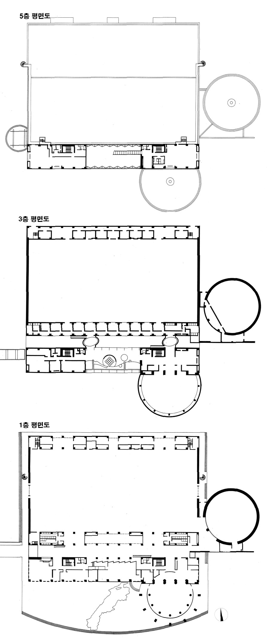
시마네현 마츠에시(島根県松江市)의 시가지는 신지호(宍道湖)에서 나카노우미호(中海)로 흐르는 오오하시가와(大橋川)에 의해 마츠에성(松江城)이 있는 북측과, JR 마츠에역(松江駅)이 있는 남측으로 크게 나뉘어져 있는데, 쿠니비키 메쎄는 북측 구시가지의 오오하시가와를 가로 지르는 쿠니비키 대교(くにびき大橋)를 건너 바로 오른쪽에 위치하고 있다.


















주요 용도는 동시에 5,000명을 수용할 수 있는 면적 약 4,000㎡의 견본시 등을 위한 전시장을 메인으로, 다목적 홀, 국제 회의장, 회의실, 현내의 각종 산업지원 사무실 등이 들어서 있다.

이들의 제기능을 합리적인 공간구성으로 통합하는 것을 목적으로 직방형의 대공간인 메인 전시장을 북측에 배치하고, 남측의 세장형 1스팬에 사무실, 회의실을 6개층에 적층시켜 배치했다.
동시에 이 공공 종합 시설을 이용하는 다양한 분야에 종사하는 다양한 사람들의 우발적인 교류에 의해 형식에 구애되지 않고, 서로 다른 산업 장르간의 네트워크 형성을 유발할 수 있는 건축공간을 지향했다.















시설의 중앙을 관통하는 갤러리, 아트리움 등은 그런 의도하에 계획되었으며, 특히, 중앙의 4개층 높이의 보이드 공간의 투명한 커튼월 공간은 교류 살롱으로, 오오하시가와 남측에서 바라보는 시마네 반도의 능선을 배경으로 하는 쿠니비키 메쎄 파사드의 포인트라고 할 수 있지만, 이 곳의 주요기능은 통로, 라운지 등으로 주요 기능은 없으면서 메쎄의 아이덴티티 역할을 하고 있다.





