| 단지명 | 우라야스 마리나 이스트21 우미카제노마치 단지 (浦安マリナイースト21 海風の街) |
| 주요용도 | 공동주택 (임대, 분양) |
| 소재지 | 치바현 우라야스시 (千葉県浦安市日の出、Chibaken Urayasushi) |
| 준공 | 1988.3~1989.4 |
| 규모 | 약6.3㏊, 주호수 950호(임대 387) |
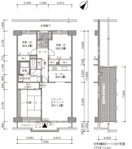
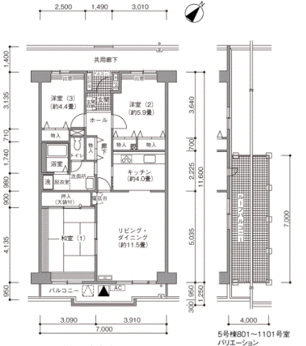
| 주호구성 | - 월임대료 : 80400엔~ 196900엔 (관리비: 2600엔) - 평면종류 : 1DK, 1LDK, 2LDK, 3DK, 3LDK, 4DK, 4LDK (35~91㎡) - 기타 : |
| 주호평면 예 | - 상세내용 : 3LDK, 77㎡, 170,400엔/월 |
- 평면 등 참고사진![]() ![]() |
|



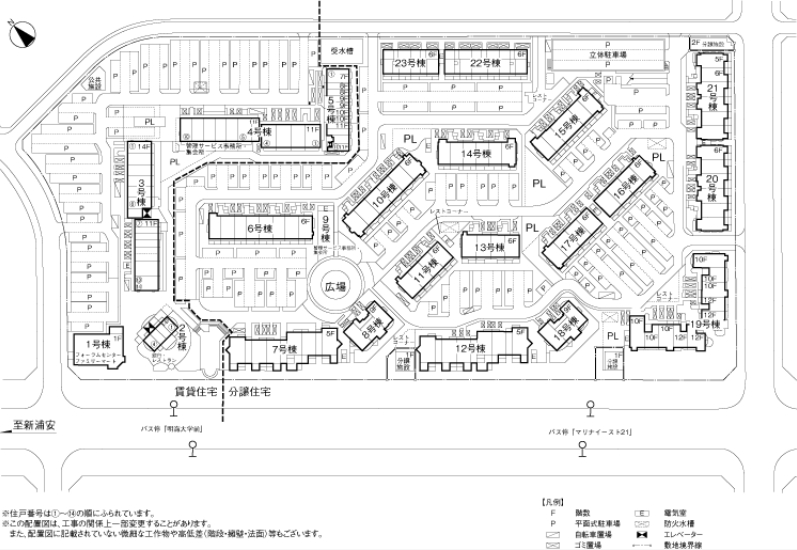
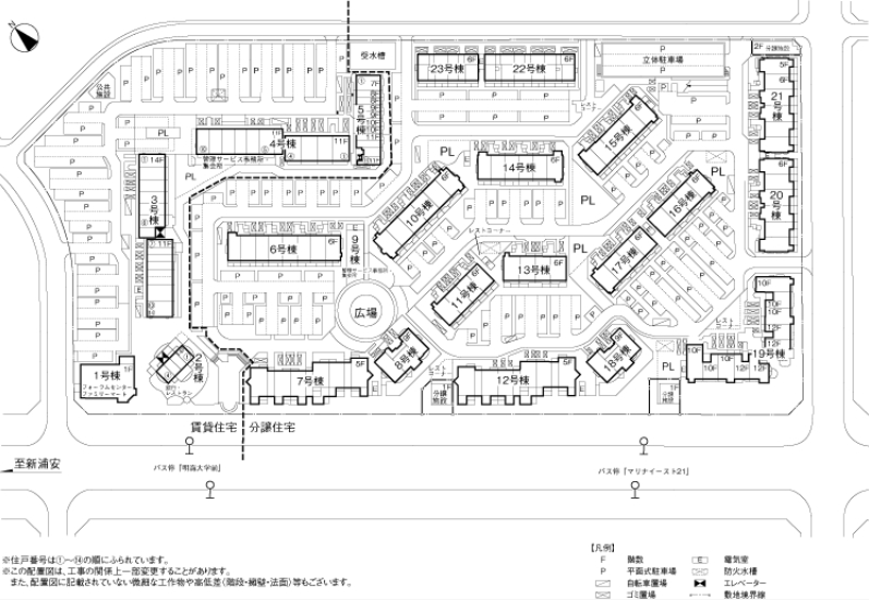
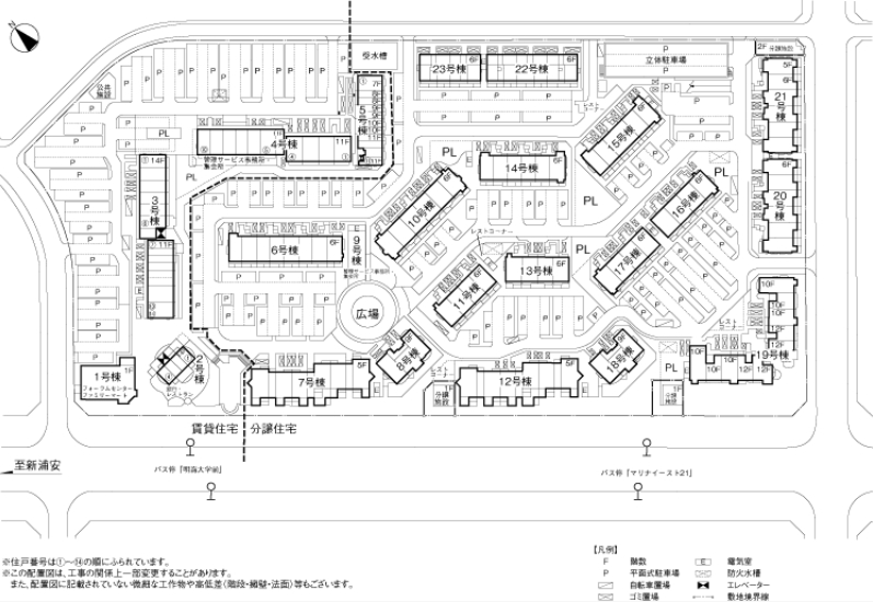
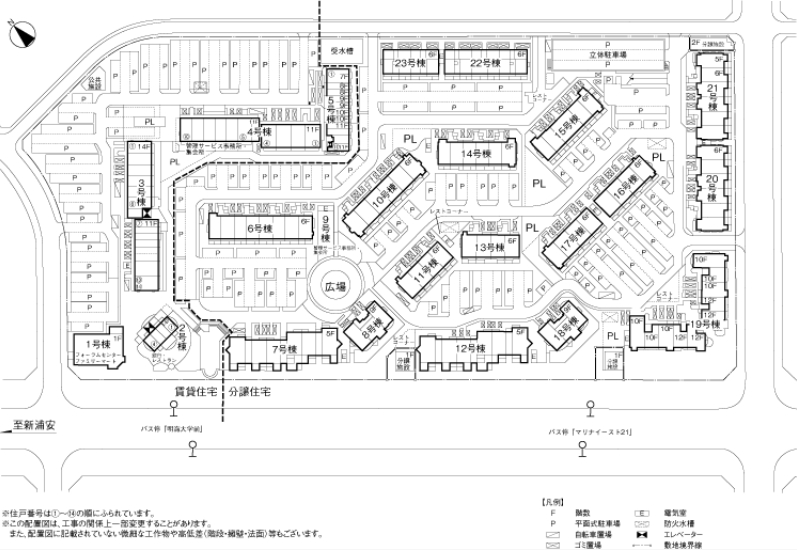
JR 케이요선 신우라야스역(JR京葉線 新浦安駅) 남측에서 약800m정도 떨어진 곳, 메카이대학(明海大学) 우라야스 캠퍼스 도로 맞은편에 있는 단지다.
우라야스 마리나 이스트 지구(浦安マリーナイースト地区) 제1호 단지로서 어번 리조트(Urban Resort)를 테마로 계획되었다.
통행로에 면한 주동은 벽면을 후퇴시켜 그 사이에 조경계획에 의한 중간영역(中間領域)을 설치하는 동시에, 야자나무(カナリーヤシ)을 심어 리조트감을 자아내고 있다.
도쿄만(東京湾)의 바다를 의식한 이미지 컬러계획, 5층 부터 14층의 다양한 높이의 주동(住棟)을 믹스(mix) 배치하여 스카이 라인(skyline)을 고려하였다.
그 외 요트광장, 뽀빠이 광장의 분수, 분수벽 및, 특징적인 사인이나 차량 속도 제어 시설 등, 해변의 리조트를 연상시키는 분위기의 주택지를 연출한 단지이다.



고독한 미식가 에피소드1-04 시즈오카 오뎅편의 로케지 부근이기도 하다.

2016.02.13 - [■일본예능/고독한미식가] - 고독한 미식가 ep01_04 신우라야스역 부근 新浦安駅付近(Shinurayasu Sta.)
고독한 미식가 ep01_04 신우라야스역 부근 新浦安駅付近(Shinurayasu Sta.)
고독한 미식가 에피소드 1-4 신우라야스역 부근 新浦安駅付近(Shinurayasu Sta.) 점명 : loco dhsh 영업시간: 폐점 에피소드 1편은 방영된지도 꽤되서 상대적으로 폐점된 곳이 많은데 이곳도 폐점. 311 동
protocooperation.tistory.com
다음은 2011년 311 동일본 지진 후, 답사한 사진.


















'■UR주택단지 > 1980~' 카테고리의 다른 글
| 주공(住工)혼재 밀집지구 도시재생 - 카미야보리 공원 하이츠, 1988 (0) | 2016.11.18 |
|---|---|
| 경사지 단지, 비오톱 - 타카츠키 아부야마 일번가,1989 (0) | 2016.11.13 |
| 경사지 분양주택 - 그라디나 가쿠엔마에(グラディーナ学園前),1987 (0) | 2016.11.01 |
| 연도형 주택이 만드는 도시가로경관 - 프롬나드 타마중앙(Promenade Tama Chyuo),1987 (0) | 2016.10.31 |
| SI주택의 모델주택 - 츠쿠바 사쿠라(つくばさくら), 1986 (0) | 2016.10.27 |

