| 단지명 | 아르테 요코하마(アルテ横浜) |
| 주요용도 | 공동주택 (임대) |
| 소재지 | 카나가와현 요코하마시 카나가와구 (神奈川県横浜市神奈川区, Kanagawaken Yokohamashi Kanagawaku) |
| 준공 | 1992.11. |
| 규모 | 지상32층, 지하2층. 약0.5㏊, 주호수 171호(저층부 : 상업시설) |
| 주호구성 | - 월임대료 : 111,600엔~296,000엔(관리비:7,800엔) - 평면종류: 1LDK ~ 3LDK |
| 주호평면 예 | 1LDK+S, 전유면적:65㎡, 179,300엔/월 |
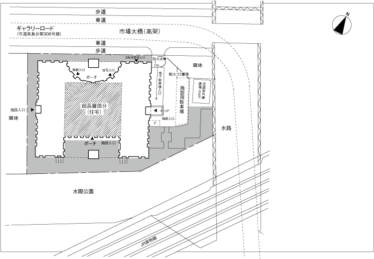
![]() |
|


아르테 요코하마(アルテ横浜)는, 미나토미라이21(みなとみらい21) 북측 현관인 요코하마 포트사이드 지구(ヨコハマポートサイド地区, Yokohama Portside, 카나가와구(神奈川区) 요코하마역 북동측의 사카에쵸(栄町), 오오노쵸(大野町), 킨코쵸(金港町)에 걸쳐있는 주택, 상업시설, 오피스 등으로 구성된 도시재생 재개발지구.)에 있는, 예술(art, アート)과 디자인(design,デザイン)의 거리를 지향하는 마을만들기(まちづくり) 상징의 초고층 집합주택이다.









요코하마(横浜)다운 지역문화를 계승하면서, 요코하마의 새로운 도시공간 및 도시경관 창출을 테마로 계획된, 요코하마 포트사이드 지구 제1호의 건축물로 유명하다.
마이클 그레이브스(Michael Graves, マイケル・グレイブス, 1934~2015)에 의한 파사드 디자인은, 가로경관(街並み)과 연계된 기단부(基壇部) 및 중층부(中層部), 고층부(高層部)의 3단구성, 정상부의 다이나믹한 디자인 구성 등에 의해, 서구적인 디자인 구성방법에 더하여, 요코하마의 개성을 표현해내는데 성공하고 있는 랜드마크로서 기능하고 있다.
1993년 제5회 거리경관상(街並賞) 요코하마-인간-거리-디자인상(横浜・人・まち・デザイン賞) 수상
* 마이클 그레이브스 관련글 :
고독한 미식가 에피소드 04-sp 후쿠오카시 하카타구 고후쿠마치 福岡市 博多区 五服町(Fukuokashi Hak
고독한 미식가 에피소드 04-sp 후쿠오카 하카타구 고후쿠마치 福岡市 博多区 五服町(Fukuokashi Hakataku Gofukumachi) 점명 : 카즈토미 Kazutomi 一富쟝르: 주점, 일식요리, 후쿠오카 향토요리 割烹・小料理
protocooperation.tistory.com
2016.09.05 - [■일본의가로경관] - 후쿠오카 - 일본의 일상풍경(18)
후쿠오카 - 일본의 일상풍경(18)
일본의 도시풍경 우연히 들른 곳이나, 특정 도시 주택을 답사하러 가다가 우연히 찍은 것들. 답사라고 하기에는 정보가 부족한 사진들 등은 분류하기가 애매해서 일상풍경이라는 제목으로 정리
protocooperation.tistory.com





'■UR주택단지 > 1990~' 카테고리의 다른 글
| 시관민(市官民) 협력에 의한 목조임대주택 밀집시가지의 재생 정비사업 - 네야가와시 히가시오오토시지구 점진적 재건축 정비사업 (0) | 2026.05.01 |
|---|---|
| 자연과의 공생을 컨셉으로 한 신흥주택지 단지- 닛신카구야마 단지, 1993 (0) | 2026.04.24 |
| 도로와 건축물의 입체적이용 - 듀프레 니시야마토(デュプレ西大和),1994 (0) | 2016.10.23 |
| 도심회귀를 위한 워터프론트 재개발 - 오오카와바타 리버시티21 이스트타워즈(大川端リバーシティ21, River City21 East Towers),1991 (0) | 2016.10.23 |
| 마쿠하리 베이타운(Makuhari Baytown) 스티븐홀 주동etc 3차답사 (0) | 2016.05.19 |
