| 단지명 | 씨사이드 모모찌 이스트 스테이지(シーサイドももちイーストステージ) |
| 주요용도 | 공동주택 (임대, 분양) |
| 소재지 | 후쿠오카시 사와라구 (福岡県福岡市早良区, Fukuokashi Sawaraku) |
| 준공 | 1989. |
| 규모 | 약4.7㏊, 주호수 900호 |
| 주호 구성(이스트 스테이지) | - 월임대료 : 57,100엔~107,600엔(관리비:3,800엔) - 평면종류: 1DK, 1LDK, 2DK, 2LDK, 3DK, 3LDK, 4DK - 관리주호수: 97호 - 주동수: 2동(임대) |
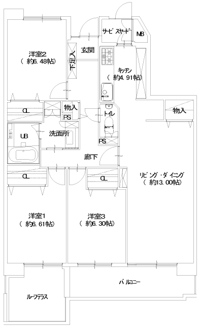
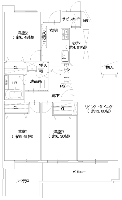
| 주호평면 예 | - 3LDK, 전유면적: 84.92㎡, 발코니:8.16㎡, 루프테라스:7.25㎡ - 3880만엔(분양),관리비:10000엔/월, 수선적립금:7800엔/월,주차장:5000/월, - 1989. |
![]() |
|

씨사이드 모모찌(シーサイドももち)는, 후쿠오카시(福岡市)가 하카타만(博多湾) 임해(臨海)부 매립지 (모모찌 해안이라고 불리웠던 해안일대)에 새롭게 조성한 워터프론트 개발 지구이다.
※ 모모찌 해안(百道海岸, 1918년 개장된 모모찌 해수욕장 및 만화가 하세가와 마치코(長谷川町子,1920~1992)가 산책하며 사자에상(サザエさん)을 구상한 곳.
| 1981년 | 1987년 | 1998년 | 2020년 |
![]() |
![]() |
![]() |
![]() |
매립공사 진척상황 / 국토교통성 국토지리원 지도항공사진관람서비스(国土交通省 国土地理院 地図・空中写真観覧サービス)


1989년 개최되었던 아시아 태평양 박람회(アジア太平洋博覧会, 1989.3.17. ~ 1989.9.3.(통칭 : 요카토피아よかトピア))가 폐막된 후, 현재의 모습으로 개발되었다.
후쿠오카시가 책정한 디자인 매뉴얼(design manual)에 기초하여, 가로경관(街並み)의 형성, 활기있는 보행자 공간의 창출, 도시 모퉁이(街角)의 광장화(広場化), 야경(夜景)의 연출 등, 통일감 있는 마을 만들기(街づくり)가 실시되었다.
| 씨사이드 모모찌 어번디자인 디자인 매뉴얼 | |
| 외관의 후퇴 | |
| 부지경계선에 따른 외벽을 후퇴시켜, 여유감을 느낄 수 있는 가로공간(街路空間) 및 지역환경(地域環境) 제공에 공헌한다. 특히, 도로를 따라서는 각각의 도로의 성격이나 가로(沿道)의 토지이용에 어울리도록 풍부한 식재(植栽), 개방감있는 광장(広場), 쉼터역할 및 활기에 찬 옥외 퍼니쳐(street furniture) 등을 설치하여, 윤택있는 보행자공간(歩行者空間)을 계획하여, <씨사이드 모모찌>다운 가로경관의 표정을 연출한다. |
![]() ![]() |
| 거리 모퉁이의 광장화 | |
| 지구(地区)의 현관이 되는 교차점, 지구 내 녹도(緑道)의 주요 교차점 모퉁이(角地)를 열려진 광장으로서 계획한다. 주요 교차점의 이미지업(image up)을 도모하는 동시에, 활기에 찬 휴식의 장으로서 매력적인 모퉁이 광장(街角広場)을 계획한다. 모뉴먼트(monument, モニュメント), 심볼트리(symbol tree, シンボルツリー), 옥외 퍼니처(strret furniture, 屋外ファニチャー) 등을 배치하여, 가로경관(街並み)의 결절점(結節点)으로서 기능할 수 있도록 한다. |
![]() ![]() |
| 가로경관의 형성 | |
| 연속성있는 벽면이나 스카이라인(skyline) 및 주동형태의 높이의 변화를 도모하여, 원거리에서의 랜드마크(landmark), 거리모퉁이에서의 아이스탑(eyestop)으로서 기능할 수 있도록 하여, 가로경관에 매력과 변화를 줄 수 있도록 한다. | ![]() ![]() |
| 옥외조명 | |
| 적절한 조명계획(照明計画)을 실시하여, 야간 등의 보행통로 등, 외부공간의 안전성을 확보하는 동시에, 야간의 분위기를 연출할 수 있도록 한다. 특히, 가로(沿道)의 편리시설 등을 밝은 쇼윈도우(show window)로 하고, 투시성(透視性) 있는 셔터 등으로 하여, 야간의 주요가로에 번화감이 있도록 연출한다. |
![]() |
이스트 스테이지(east stage, イーストステージ)는 중앙광장 주위로 주동을 배치하고, 히이가와(樋井川) 너머 보이는 경관을 의식하여 스카이라인(skyline)을 조정하였으며, 모퉁이 광장(街角広場, 포켓광장(pocket park))은 바람(風)과 빛(光)과 자연(緑)을 테마로 디자인하여, 거리의 결절점으로서 기능할 수 있도록 하였으며, 임대주택과 북측의 시설동을 인공지반(人工地盤)으로 연결하였다.






한편, 중심업무지구인 텐진(天神)보다 서측이고 후쿠오카 공항(福岡空港)의 제한표면(制限表面, 비행장 주변에 설정된 면(높이))에서 벗어난 곳인 관계로, 텐진보다 높은 고층건축물들이 들어서 있으며, 후쿠오카의 부도심(副都心)으로서 기능하고있다.
모모찌하마지구(百道浜地区)에는 후쿠오카 타워(福岡タワー), 후쿠오카 종합도서관(福岡市総合図書館), 후쿠오카시 박물관(福岡市博物館), RKB마이니치방송 테레비 니시니혼(RKB毎日放送・テレビ西日本) 사옥, 정보관련기업, 정보기술연구개발기관 등, 고층 빌딩과 맨션 등이 다수 세워져 있으며, 지교하마 지구(地行浜地区)에는, 호크스 타운(Hawks Town, ホークスタウン) (후쿠오카 야후오쿠 돔(Fukuoka Yahoooku Dome, 福岡ヤフオク!ドーム), 힐튼 후쿠오카 씨호크(Hilton Fukuoka Sea Hawk, ヒルトン福岡シーホーク) 등) 등이 있다.
| 지구 | 부지면적(㎡) | 임대주택(호) | 분양주택(호) | 주택계(호) |
| 이스트 스테이지(イーストステージ) | 약16,300 | 97 | 157 | 254 |
| 사우스 스테이지(サウスステージ) | 약10,000 | 219 | 0 | 219 |
| 센터 스테이지(センターステージ) | 약20,900 | 423 | 0 | 423 |
| 계 | 약47,200 | 739 | 157 | 896 |






| 후쿠오카 타워(福岡タワー) | 후쿠오카시 종합도서관(福岡市総合図書館) | 후쿠오카시 박물관(福岡市博物館) | 테레비 니시니혼 사옥(TNC放送会館) |
![]() |
![]() |
![]() |
![]() |
| By 陳 ポーハン - Flickr, CC 表示 2.0, https://commons.wikimedia.org/w/index.php?curid=44474926 | By Heartoftheworld - photo by Heartoftheworld, CC 表示-継承 3.0, https://commons.wikimedia.org/w/index.php?curid=8836069 | GFDL, https://ja.wikipedia.org/w/index.php?curid=544357 | GFDL, https://ja.wikipedia.org/w/index.php?curid=318483 |
| http://www.fukuokatower.co.jp/ | http://toshokan.city.fukuoka.lg.jp/ | https://museum.city.fukuoka.jp/ | http://www.tnc-tvbldg.co.jp/ |
| 호크스 타운(株式会社ホークスタウン) | 힐튼 후쿠오카 씨호크 | 후쿠오카 돔 |
![]() |
||
| https://fukuokaseahawk.hiltonjapan.co.jp/ | https://www.softbankhawks.co.jp/stadium/ | |
※호크스 타운몰은 2016년 영업종료후 2018년 상업시설 'MARK IS 후쿠오카 모모찌(福岡ももち)'로 재개발.




2016.08.01 - [■memo/여행팁tip ] - 바이크 용품 쇼핑하러 저가항공으로 일본 후쿠오카에!
바이크 용품 쇼핑하러 저가항공으로 일본 후쿠오카에!
우연히 일본 후쿠오카시를 저가 비행기로 국내선보다 싼 가격에 가는 기회가 있었다. 예정에도 없던 출장이었고 시간도 널널해서 숙소에서 쉬는 시간에 일본에 온 김에 바이크 용품이나 살까
protocooperation.tistory.com
'■UR주택단지 > 1980~' 카테고리의 다른 글
| 연도형 주택이 만드는 도시가로경관 - 프롬나드 타마중앙(Promenade Tama Chyuo),1987 (0) | 2016.10.31 |
|---|---|
| SI주택의 모델주택 - 츠쿠바 사쿠라(つくばさくら), 1986 (0) | 2016.10.27 |
| 다양한 주동배치에 의한 외부 공간구성 - 리버사이드 토모부치,1984 (0) | 2016.10.20 |
| 일본 최초의 대규모 고층고밀 개발 - 히카리가오카 파크타운(光が丘パークタウン),1983 (0) | 2016.10.20 |
| 워터프론트 재개발 - 요도가와 리버사이드타운(淀川リバーサイドタウン), 1983 (0) | 2016.10.18 |
















