▣ 쿠마모토 현영 호타쿠보제1단지(熊本県営保田窪第1団地) ▣
■ 개요 :
쿠마모토 아트폴리스 프로젝트 집합주택 완성 제1호.


『같이 모여 산다』는 공공 집합주택에 의한 주거의 의미를 각 주호의 배치 및 기능, 디자인 그리고 무엇보다 중정이란 퍼블릭 스페이스의 재정의에 의해, 그 의미를 다시한번 생각케 한 야마모토 리켄(山本理顕、Yamamoto Riken)의 작품.
(공공주택이기 때문에) 빠듯한 예산과 한정된 주호 전용면적 내에서 가능한한 쾌적한 주환경을 만들어낼 것인가가 주요한 과제였다.
종래의 일률적인 남향을 향한 등간격으로 늘어서는 형식적인 평등을 강조하는 배치에서 벗어나, 각 주호가 단지 중앙의 광장을 둘러싸는 중정형 배치를 적용하였다.
호타쿠보 단지의 가장 큰 특징인 이 중정은 외부와 차단되어, 각 주호를 통하지 않으면 접근할 수 없는 100여 세대를 위한 폐쇄적인 커뮤니티 공간이다.
물론 마츠리(祭り, 축제)나 이벤트 개최시의 무대와 준비실이 되는 중정 남측의 집회실은 임시적으로 개방되어 지역주민과의 교류공간으로도 역할을 하지만, 기본적으로는 폐쇄된 단지 내 주민들 만을 위한 커뮤니티 공간이다.
공영주택이라는 공공성(公共性)에 이의를 제기할 수도 있지만, 쿠마모토 공영주택을 답사한 곳 중에서는 가장 관리가 잘되고 있다는 인상을 받았다.
각 주호는 중앙의 중정과 함께 여유있는 테라스에 의해 외부공간과 충분히 면하고 있다.
| 작품명 | 쿠마모토현영 호타쿠보 제1단지 (熊本県営保田窪第1団地, Kumamoto Prefecture Hotakubo Daiichi Public Housing) |
| 주요용도 | 공동주택 |
| 소재지 | 쿠마모토현 쿠마모토시 오비야마 (熊本県熊本市帯山, Kumamotoshi Obiyama) |
| 설계 | 야마모토 리켄(山本理顕, Yamamoto Riken) |
| 준공 | 1991.08. |
| 주요구조 | RC |
| 시공(건축) | 和久田建設、高橋建設、三津野建設、安田建設 |
| 규모 | 지상5층, 집회실 지상1층, 주호수 110호(주차 76대) |
| 부지면적 | 11184㎡ |
| 건축면적 | 3562㎡ |
| 연면적 | 8753㎡ |
| 건폐율 | 31.9%(60%) |
| 용적율 | 78.3%(200%) |
| 지역지구 | 제2종 주거전용지역 |
| 외부마감 | 지붕: 평지붕(陸屋根) - ウレタン塗布防水 R지붕 - ガルバリウム鋼板折板t0.8mm+ガルバリウム鋼板丸波t0.4mm 처마 - FRP丸波t1.2mmクリア 외벽: コンクリート打放し+撥水剤塗布 型枠コンクリートブロック+撥水剤塗布 개구부: アルミサッシュ(シルバー色) スチールサッシュ アクリル焼付塗装(シルバー色) 외부시설 : 가림막 - ガルバリウム鋼板t1mm打抜きガラリ+FRPt3mmクリア 난간 - スチール溶融亜鉛メッキ |
| 기타 | 최고높이 13750mm,처마높이:15150mm, 층고(1,2층): 2755mm, 천정고(거실):2350mm, 주요스팬:5250mm x 4400mm, 3100mm x 3750mm |
<쿠마모토 아트폴리스 프로젝트>의 일환으로서 1988년 7월 스타트한 본 사업은, 90년4월에 1기 공사가, 91년 9월에 2기 공사와 집회실이 준공, 그리고 1991년 11월에 중앙광장을 포함한 조경공사가 완성됐다.
입지하는 곳은 간선도로로부터 떨어진 한적한 주택가의 한 구획.
상품으로서의 주택이라는 경제원리로부터 비교적 자유로운 위치에 있는 공영주택(公営住宅)에 새로운 주거환경(住環境)의 가능성을 제시하고 싶었다.
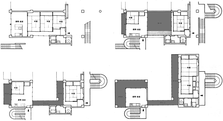
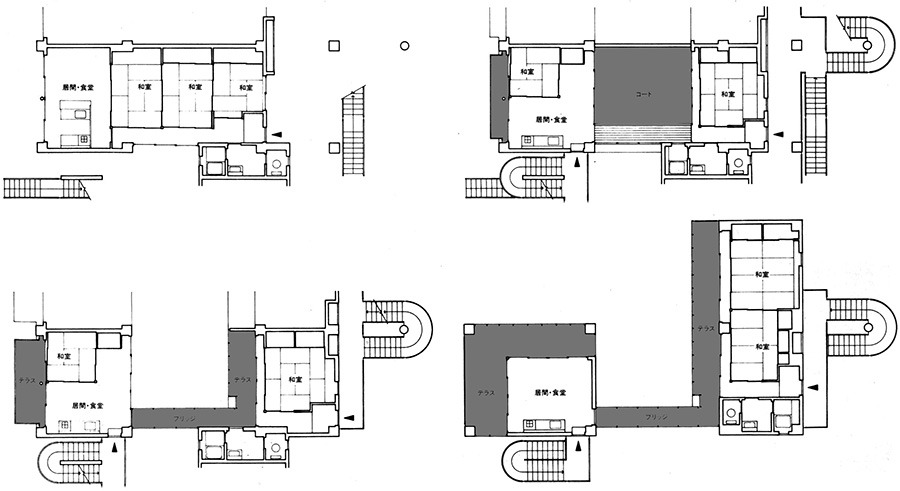
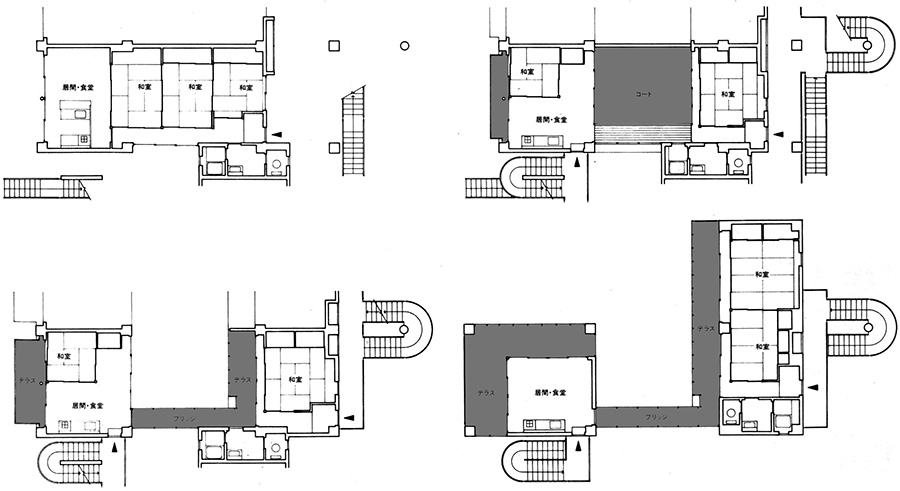
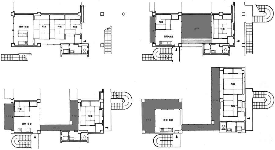
전(全) 주호수 110호는 세 개의 주동과 집회실이 중앙광장을 둘러싸는 중정(中庭)형 배치로 구성되어있다.
중앙광장은 단순한 부지 내의 빈 공간이 아닌, 주민들의 생활의 장소으로써 적극적인 의미를 가질 수 있도록 계획하였다.
외부로부터 완전히 폐쇄된 중앙광장에 들어오기 위해서는 두가지 방법이 있다.
하나는, 주호 내를 통과하여 중앙광장으로 들어가는 방법,
둘 째는, 집회실을 통과하여 들어가는 방법이다.
즉, 아무 목적 없이 통과목적으로만은 중앙광장을 이용하지 못하는 시스템이다.
각 주호에서 중앙광장으로 내려가는 계단에는 공용의 루프 테라스(roof terrace)가 배치되어있으며, 또한, 날씨가 좋을 때의 쾌적한 생활을 위해서 가족실은 중앙광장을 향해서 가능한 한 개방적으로 열려있도록 계획하였다.
가족실과 침실은 분동되어, 3층 이상은 브릿지(bridge)가, 2층부분에는 코트(court)가 두 공간을 이어주는 역할을 하고있다.
분동배치로 되어있기 때문에 모든 거실은 외부에 대해서 2면(面) 개방이 가능하도록 계획했다.
그리고, 각 가족실에는 반드시 테이블과 의자를 놓을 수 있을 정도의 여유를 가진 테라스가 부속되어 있도록 하였다.
침실 앞의 테라스나, 브릿지에는 FRP와 갈바늄(Galvalume) 동판으로 된 외부부터의 시선(視線) 차단을 위한 프라이버시(privacy) 보호용 판넬이 부착되어 있다.
외벽으로 사용된 거푸집 콘크리트 블록(型枠コンクリートブロック)은 쿠마모토현 블록 협회(熊本県ブロック協会)와 주택과(住宅課)의 협력으로 본 계획을 위해서 개발된 것으로 저코스트로 사용할 수 있었다.
호타쿠보 제1단지 프로젝트는 주택과(住宅課)의 이해와 적극적인 지원, 그리고 저코스트임에도 불구하고 우리들의 귀찮은 요구에 인내심있게 같이 고민하고 대응해 준 시공사의 노력없이는 성사되기 어려운 계획이었다.
- 야마모토 리켄







<주차장이 있는 단지 북동측>
녹원도시 상업가구 XYSTUS(緑園都市駅前 商業街区 XYSTUS), 야마모토 리켄(山本理顕 Yamamoto Riken), 1992
작품명녹원도시 상업가구 XYSTUS(緑園都市駅前 商業街区 XYSTUS)주요용도공동주택, 점포, 우체국, 주차장소재지카나가와현 요코하마시 이즈미구 료쿠엔 (神奈川県横浜市泉区緑園4-1-6, Kanaga
protocooperation.tistory.com
일반주택지역의 재개발 사례 - 요코하마시영주택 미츠쿄하이츠(横浜市営住宅 三ツ境ハイツ Yokoh
작품명 요코하마시영주택 미츠쿄하이츠(横浜市営住宅 三ツ境ハイツ Yokohama City Housing Mitsukyou Heights)주요용도 집합주택 소재지 神奈川県横浜市瀬谷区三ツ境56-5他(Kanagawaken Yokohamashi Seyaku Izumiku Mi
protocooperation.tistory.com
저층 랜드스케이프 건축- 사이타마현립대학(埼玉県立大学, Saitama Prefectural University), 야마모토 리
작품명사이타마현립대학 (埼玉県立大学, Saitama Prefectural University), 야마모토 리켄(山本理顕 Yamamoto Riken), 1999(1) 주요용도대학소재지埼玉県越谷市三野宮820 (Saitamaken Koshigayashi Sannomiya820)설계山本
protocooperation.tistory.com
'■현대 일본 도시주택 > 1990~' 카테고리의 다른 글
| 전문 도시주택 건축가 하야카와 쿠니히코 - 쿠마모토시영 신치단치A(熊本市営新地A団地) (0) | 2016.08.26 |
|---|---|
| 새로운 장소성을 만들어내는 공공주택-쿠마모토 현영 오비야마A단지(熊本県営帯山A団地) (0) | 2016.08.25 |
| 도시재생 프로젝트 쿠마모토 아트폴리스 14호 - 쿠마모토시영타쿠마단지(2) (0) | 2016.08.22 |
| 도시재생 프로젝트 쿠마모토 아트폴리스 14호 - 쿠마모토시영타쿠마단지(1) (0) | 2016.08.22 |
| 여성전용 원룸 임대주택 - 라이트코트 카스가 (ライトコート春日, Light Court Kasuga) (0) | 2016.07.13 |