| 작품명 | GREEN FOREST |
| 주요용도 | 집합주택(총 4호) |
| 소재지 | 도쿄도 스기나미구 (東京都杉並区, Tokyo Suginamiku) |
| 설계 | 나카야마 겐자부로 (山中玄三郎, Yamanaka Genzaburo) |
| 설계기간 | 1999.3~1999.9. |
| 주요구조 | 목조재래구법(木造在来構法) |
| 시공(건축) | 蒼建社 |
| 공사기간 | 1999.9~2000.3. |
| 규모 | 지상2층 |
| 부지면적 | 842.23㎡ |
| 건축면적 | 373.22㎡ |
| 연면적 | 670.22㎡ |
| 건폐율 | 44.31% (50%) |
| 용적율 | 79.57% (80%) |
| 지역지구 | 제1종저층주거전용지역, 준방화지역, 제1종고도지구 |

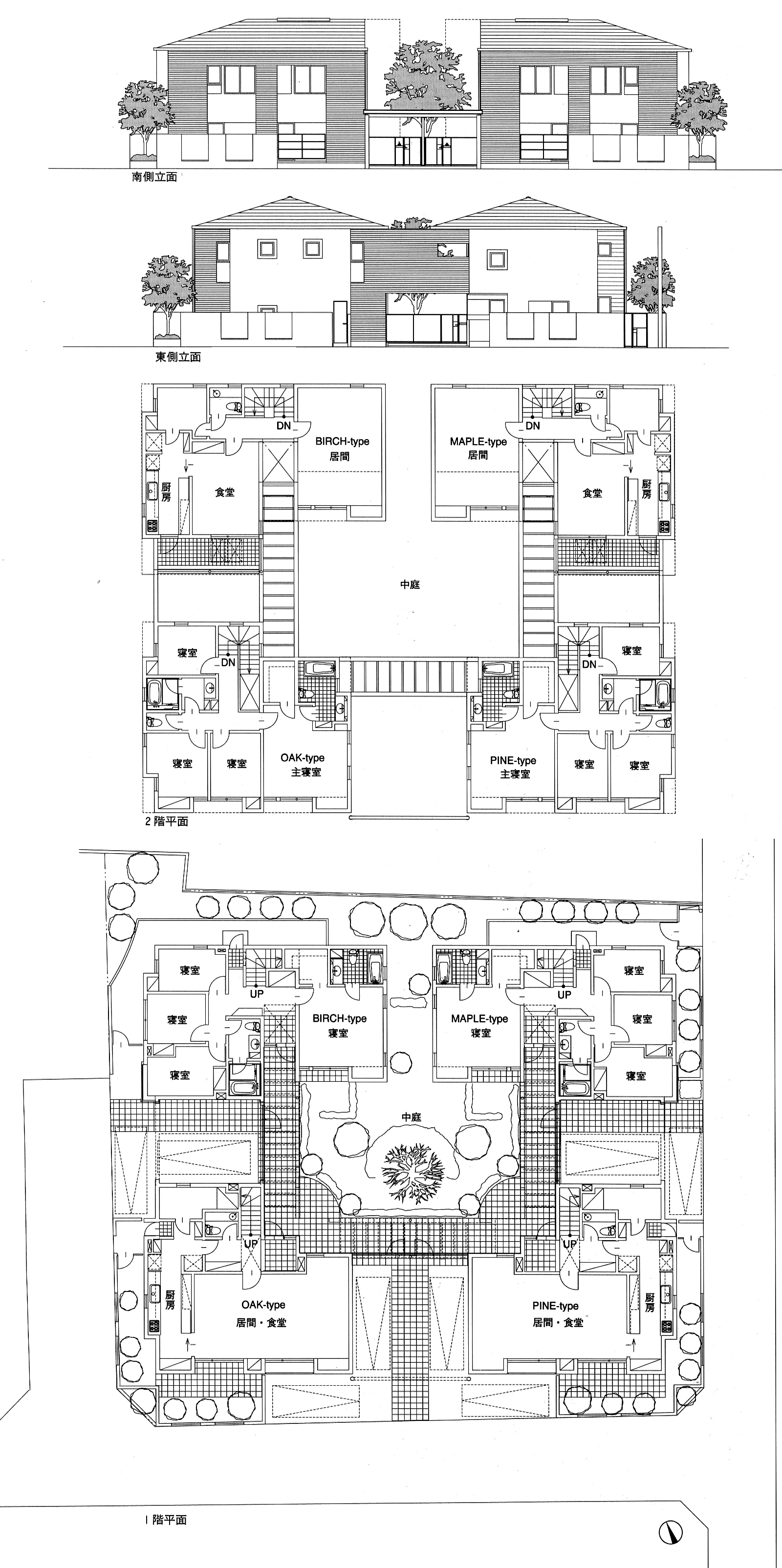
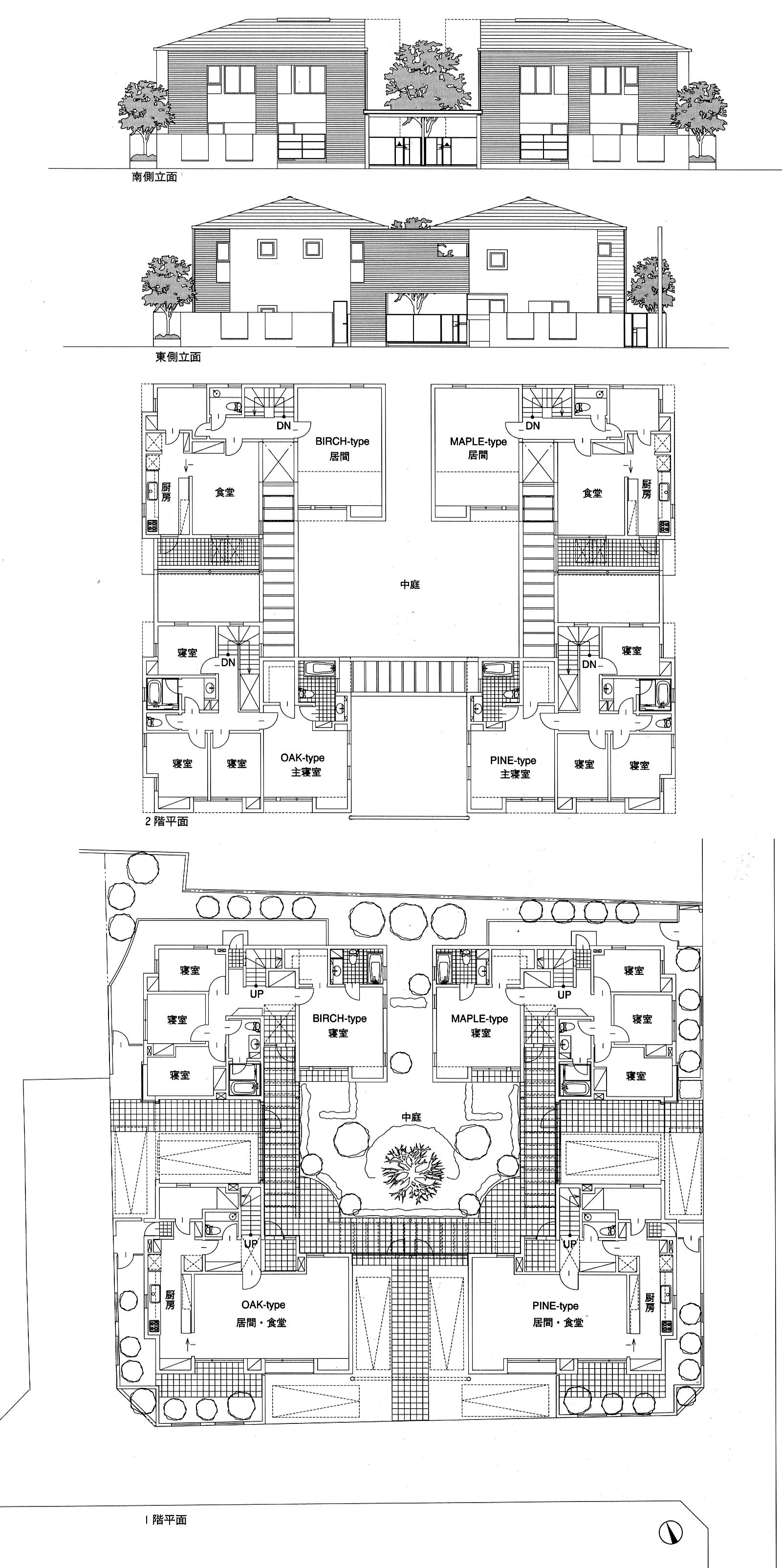
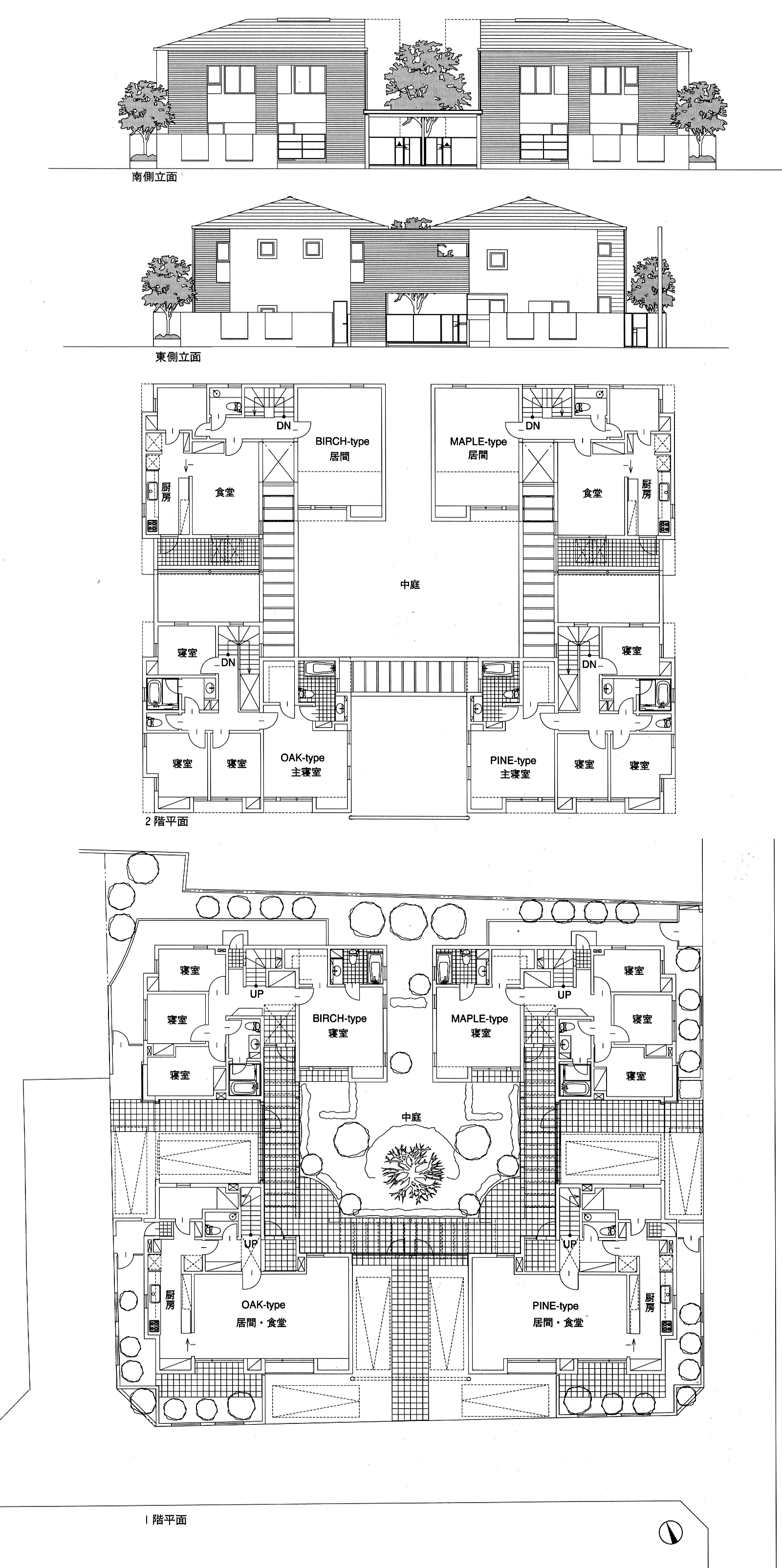
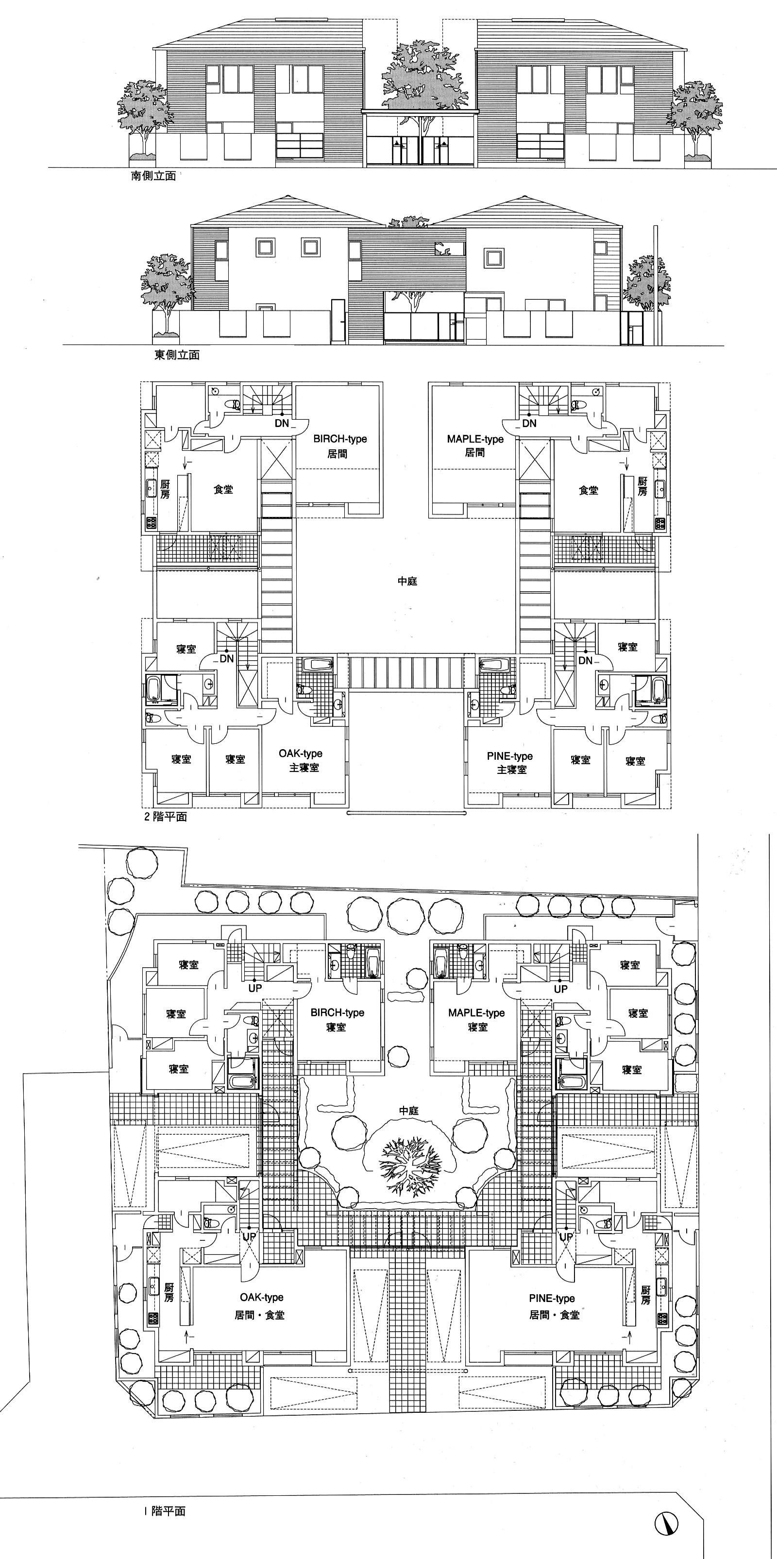
Inner-garden을 둘러싸는 집합주택
Green Forest는 도심을 관통하는 두개의 간선도로에서 약간 가구 안으로 들어가서 단독주택이나 저층 아파트가 주를 이루는 주택가에 위치해있다.
처음 부지를 방문했을 때는 이미 이전 건물들은 철거된 상태의 공터로 정지된 상태였다.
3면이 외부 도로에 접하고 있었으며(남측, 서측, 동측), 주변 환경으로부터 독립되어 있다는 느낌을 받았다.
사전 기획된 설계 조건으로는 외국인 입주를 고려한 규모가 어느정도 있는 집합주택이었으며, 주호는 4LDK+ 수납공간 + 2개의 욕실의 확보, 장래 전체부지를 4필지로 분필할 수 있도록 계획하는 것이 요구되었다.
계획대지의 지형 및 대지에 면한 도로의 관계들로부터 대지는 밭전자형으로 분할 가능한 선을 긋는 것으로 배치를 결정했다.
3면이 도로에 면해있기 때문에 각 세대는 단독주택으로 개방적이고 독립적으로 계획될 뿐만 아니라, 일반적으로 폐쇄적 공간이 되기 쉬운 공용 공간의 영역을 대지의 중심에 배치하여( 중정(Inner Garden) ), 각 세대와의 관계성을 중심으로부터 외부로 흘러가는 듯이 계획했다.
중정(Inner Garden)에는 6M 높이의 백일홍을 식재하여 심볼트리의 역할을 부여하였다. 백일홍을 둘러싸는 듯이 배치된 4세대의 각 주호를 연결시키는 회랑(공용복도)과 파고라(pergola)는 공용공간과 각 주호에 일체감을 부여하고 있다.
동시에 중정의 상징성을 강조하기 위해서 독립된 각각의 4채를 동서방향으로 대칭적으로 배치하였다.
독립된 4세대는 각각 도로로부터 진입가능한 독립된 현관과 주차장을 보유하여 세대별 독립성과 사생활 보호가 가능토록 하였다.
각 세대의 현관은 투명한 강화글래스 소재로 계획하여 동서, 남북방향으로 중정을 매개하며 건너편까지의 시선이 막히지 않도록 하여 중정을 주변의 주거 환경에 시각적으로 개방토록 하였다.
남측의 두 채 평면은 1층을 LDK, 2층에 개실을 배치하고 1층 부문에는 개별 주호 전용 테라스가 계획되었다. 남측 세대가 공용의 중정공간에 면해있기 때문에 북측 세대는 2층에서 외부로의 시선을 중요시하여 2층에 LDK와 발코니를 배치, 1층 부분을 개실로 계획하였다.
4채의 각 세대에는 각각 오크(OAK), 소나무(PINE), 자작나무(BIRCH), 단풍나무(MAPLE) 라는 별칭과 함께 해당 나무를 식재하였고, 현관부분의 실내 벽면에는 각 별칭목재를 마감재로 하였다.
(나카야마 디자인연구소)





