| 작품명 | 네리마 골목길(로지) 집합주택 (練馬路地の集合住宅, Neri Bldg.) |
| 주요용도 | 집합주택 |
| 소재지 | 도쿄도 네리마구 (東京都練馬区 Tokyoto Nerimaku) |
| 설계 | 若松均(와카마츠 히토시) |
| 설계기간 | 2004.9.~2005.5. |
| 준공 | 2006.3. |
| 구조 | 타다슈지구조설계사무소(多田脩二構造設計事務所) |
| 주요구조 | S, RC조 |
| 시공(건축) | 辰 |
| 공사기간 | 2005.7.~2006.3. |
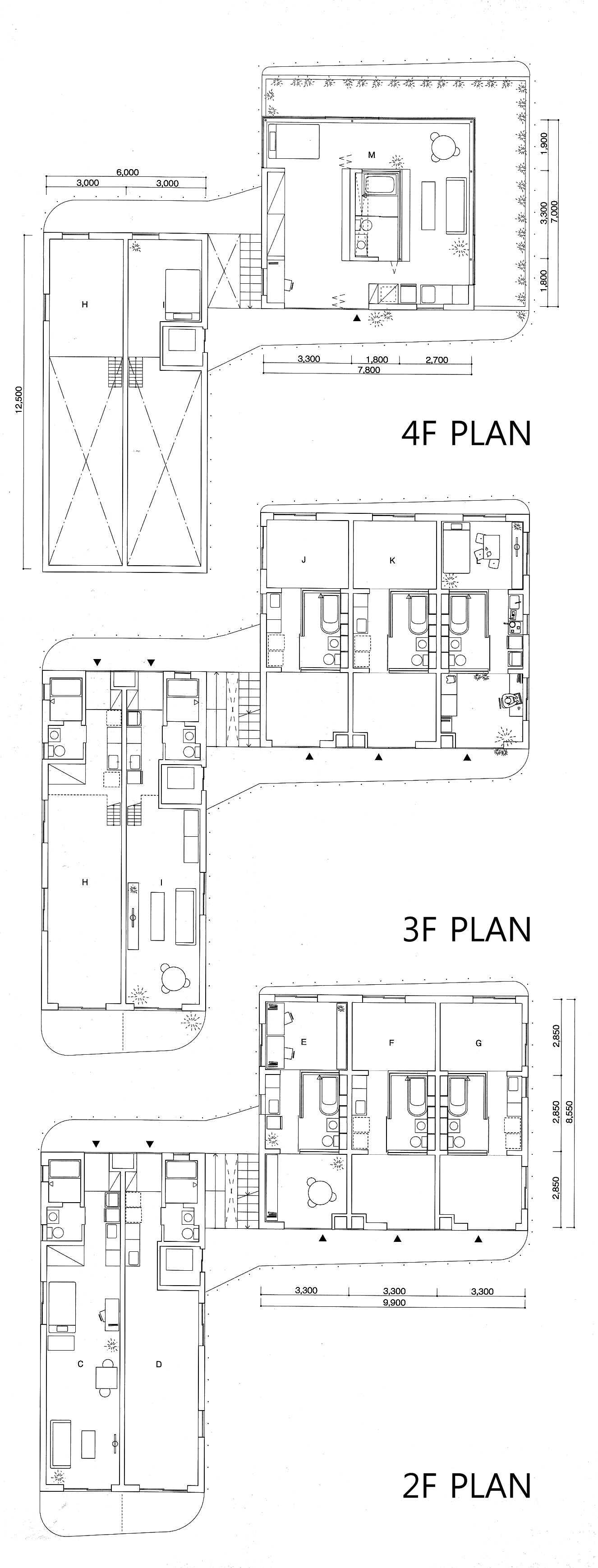
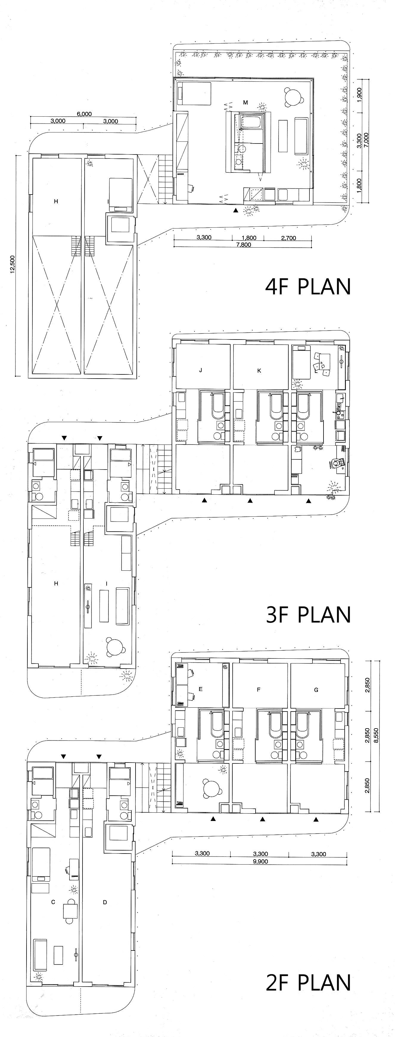
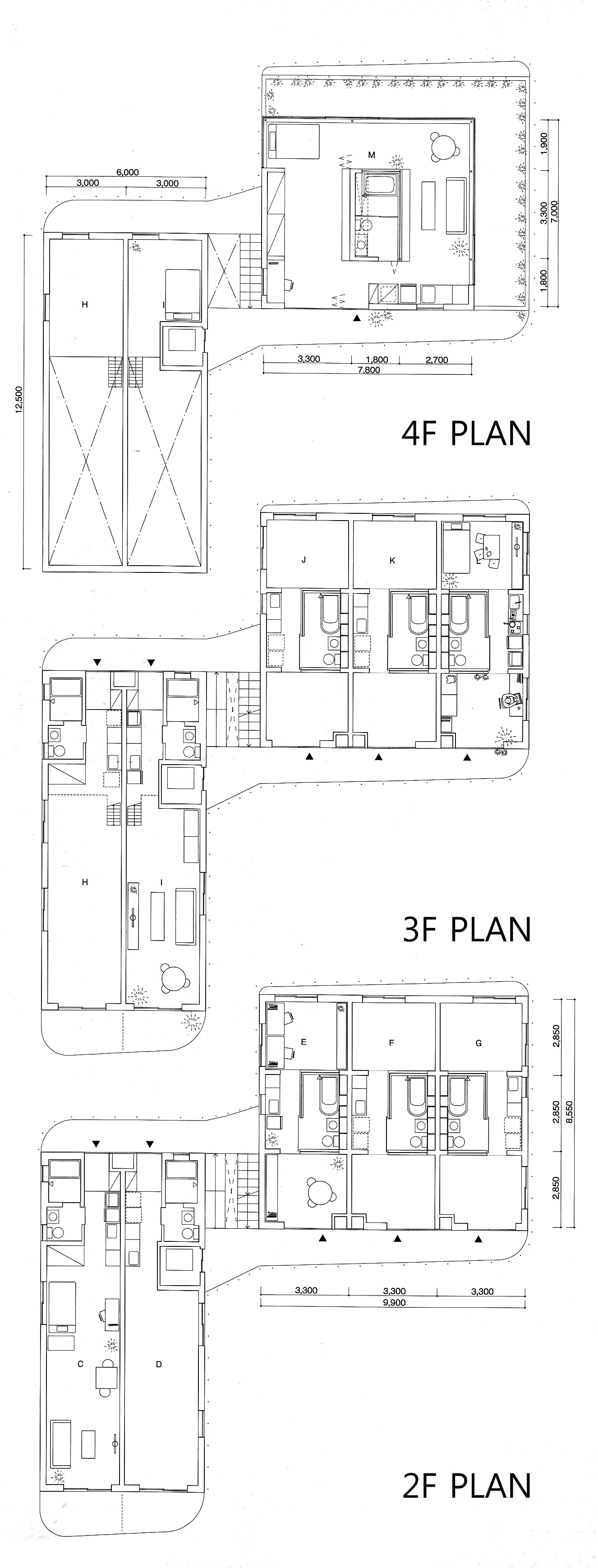
| 규모 | 지상4층(주차 5대) |
| 부지면적 | 293.07㎡ |
| 건축면적 | 175.83㎡ |
| 연면적 | 544.08㎡ |
| 건폐율 | 59.9%(60%) |
| 용적율 | 155.9%(160%) |
| 지역지구 | 제1종 중고층주거지역, 준방화지역, 제2종 고도지구 |
| 주요외장 | 지붕:북측동 - 塩化ビニルシート防水 남측동 - タケイ進化コンクリート法防水(タケイ工業) 외벽:コンクリート化粧打ち放しの上撥水剤塗布 개구부 : アルミサッシ、鉄製扉(三協立山アルミ) 외부시설 : 玉砂利洗い出し仕上げ、コンクリート金ゴテ仕上げ |

| 건축계획 알림판 | ||||
| 건축물의 명칭 | (仮称)N2 project 新築工事 | |||
| 건축부지의 지명지번 | 東京都練馬区 OO | |||
| 건축물 개요 | 용도 | 共同住宅 | 부지면적 | O㎡ |
| 건축면적 | O㎡ | 연면적 | O㎡ | |
| 구조 | S造、RC造 | 기초공법 | ベタ基礎 | |
| 층수 | 地上O階、地下O階 | 높이 | Om | |
| 착공예정 | O年O月O日 | 완료예정 | O年O月O日 | |
| 건축주(주소) (성명) (연락처) |
住所 名前 電話 |
|||
| 설계자(주소) (성명) (연락처) |
住所 名前 電話 |
|||
| 시공자(주소) (성명) (연락처) |
住所 名前 電話 |
|||
| 표식 설치일시 | O年O月O日 | |||
| * 이 표식은 ( ) 중고층건축물의 건축과 관련된 분쟁의 예방과 조정에 관한 조례 제o조 제o항의 규정에 의해 설치된 것입니다. * 상기 건축계획에 관한 의견은 아래 연락처로 연락바랍니다. (연락처) |
||||
■ 좁은 골목길(≒로지路地)과 포켓 광장
계획 부지는 점포병용 건물들이 늘어서 있는 상업지역에서 한 블럭 들어간 주택가에 입지하고 있다.
역에서 걸어서 갈 수 있는 가까운 거리에, 서민(下町)적인 분위기가 남아있는 조용한 장소다.
(이 곳도 도쿄의 일반적인 토지상황과 같이, 제 사회 동향에 따른 노후화된 주택, 공실, 이빨 빠진 듯한 미개발 토지 등이 점재하고 있다.)
장래, 이러한 건물이나 공지들도 재건축이 필요하다는 계획을 시야에 넣고, 주어진 계획부지 뿐만이 아닌 마을의 주거환경에 대한 장기적인 제안이 필요하다고 생각했다.




부지는 정방형과 장방형이 모서리 부분으로 연결된 크랭크와 같은 모습을 하고 있다.
모서리를 포함해서 3면이 도로에 접하고, 동,서,북의 도로폭이 약3m로, 자동차의 통행이 어려운 좁은 골목길(路地的な環境)과 같은 환경이다.
주변의 집들은, 그 보다 더 좁은 골목길로 진입로 등을 만들면서 서로 밀집되어 있다.













이러한 환경에 고밀도의 원룸 볼륨을 2동으로 나누어 계획하였다.
건물 크기와 배치를 결정한 것은 주호와 주호와의 거리, 인동간격, 도로로 부터의 거리 등에 의해 얻어진 공지를 만드는 것이기도 하다고 생각했다.
불규칙한 모습의 부지이기 때문에, 인접 건물도 적극적으로 참가시켜 사잇공간(隙間)을 만들 수 있는 동시에, 주동을 분절 하였기 때문에 주위건물의 볼륨, 밀도와 거부감없이 조화를 이룰 수 있었다.
동남, 북서 배치에 의해, 동서의 공도(公道)를 연결시키는 <길(みち)>이 부지 내에 만들어지고, 모서리에 있는 건물을 필로티로 띄워 지붕이 있는 <광장>도 만들어 졌다.
광장은 맞은편에 있는 기존의 골목길(路地)와 연속하여 새로운 만남을 만드는 동시에, 다방향으로 접속되어 확장될 수 있는 장소가 되었다.
건물 사이에 끼인 수직의 사잇공간(隙間)이 골목길(路地)이 되면서, 지면과 건물에 끼인 수평으로 확장되는 이 사잇공간은 길과 이어진 <광장 골목길(広場路地)>이라고도 부를 수 있는 공간이다.
■ 자연스럽게 연결되어 있는 각각의 장소.
한편, 외부계단, 외부복도, 발코니는 철근 콘크리트로만 만들어져, 사각형의 건물의 볼륨에서 처마와 같이 얇게 내밀어져 있다.
발코니는 공도에서 셋백되어 약간 내려져, 툇마루(≒엔가와縁側)처럼 사용될 수 있도록 하였다.
일반적인 경우처럼의 공용부(共用部)이면서도, 길(公道)이 연장된 것과 같이 넌디테일(non-detail)로 해서 일체화하도록 계획하였다.
이렇게 연장된 <길(みち)>은 그대로 <입체 골목길(立体路地)>이 되어 각 주호에 이른다.
모든 주호는 공도에 면하며, 2방향으로부터 진입이 가능한 접지(接地) 타이프, 길게 늘어진 원룸 타이프, 욕실부엌(水回り)에 의해 공간이 둘로 나뉘어진 타이프, 오너 주호인 펜트하우스 등, 부지의 폭과 깊이, 각각의 프로포션(proportion)에 의해 형상이 다른 주호들이 만들어졌다.
각 주호는 투명글라스의 입구를 지나, 다시 길을 향하여 확장하며 빠져 나가는 것과 같은 감각으로 계획되었다.


■ 변하는 것과 변하지 않는 것.
이 것들은 마을, 거리(まち)의 구조에 따라 앞으로도 변하지 않는 인프라 스트럭쳐(infra structure)라고 할 수 있다.
현재, <길(みち)>은 공도와 같이 앞 뒤로 빠져 나갈 수 있는 통로로서 사용되어지고 있고, <광장 골목길(広場路地)>은 일상생활에서 햇볕이나 비를 피하기 위한 장소가 되어, 거주민이나 이웃 주민들이 모이는 장소가 되어주고 있다.
옛날의 골목길(路地)이나 우물가(井戸端), 또는 마을 어귀 버드나무 밑(木立)과 같은 역할을 하고 있다.
지금까지 구분소유(区分所有)를 위해 존재하던 기존의 무표정한 담벼락이 새로운 외벽과 함께 <광장(広場)>과 <길(みち)>을 만드는 요소로 바뀌었다.
한편, 건물의 외주(外周)에 설치한 와이어에는 앞으로 담쟁이 덩쿨이 자랄 예정이다. 갈대발이나 화분에 심은 꽃과 같이 계절과 시간에 따라 변해 가는 것들과, 골목길이나 광장과 같이 <변하지 않는 것>의 두 환경이 병존하면서 주변거리와 함께 지속적으로 갱신시켜 갈 것을 기대한다.
(와카마츠 히토시 若松均)




























