| 작품명 | 명화의 정원(京都府立陶板名画の庭, Garden Of Fine Art) |
| 주요용도 | 야외 전시시설 |
| 소재지 | 교토시 사쿄구 시모가모한기쵸 京都府京都市左京区下鴨半木町 (Kyotofu Kyotoshi Sakyoku Shimogamohangicho) |
| 설계 | 안도 타다오(安藤忠雄, Tadao Ando) |
| 설계기간 | 1990.9. ~ 1992.9. |
| 주요구조 | 철근 콘크리트조 |
| 시공(건축) | |
| 공사기간 | 1993.4. ~ 1994.3. |
| 규모 | 지하 2층, 지상 1층 |
| 부지면적 | 2824㎡ |
| 건축면적 | 2104 ㎡ |
| 연면적 | 212 ㎡ |
| 건폐율 | % |
| 용적율 | % |
| 지역지구 | |
| 외부마감 |
개원시간 : 9:00~17:00
휴원: 12월28일~1월4일
교통: 쿄토시영지하철(京都市営地下鉄) 키타야마역(北山駅) 3번출구 동측
1994년 개관.
전시품 8점 중 4점은 1990년 국제꽃박람회(国際花と緑の博覧会) 중 안도타다오의 파빌리온에서 전시되었던 것. 나머지 4점은 본 전시시설을 위해서 제작.(파빌리온 개요는 블로그 맨 아래에 소개)
도판회화(陶版画)는 원화를 촬영한 포지티브필름을 사진제판 기술에 의해 도자재질의 판에 전사하여 구운 것으로, 변색이나 부식에 강하여 옥외에 영구히 전시하는 것이 가능하하며, 이러한 종류의 전시시설로서는 본 전시시설이 세계최초였다.
▶ 1. 모네(Claude Monet, 1840~1926).「수련·아침」(200cm x 1275cm)
▶ 2. 토바소죠(鳥羽僧正,1053~1140), 「의인만화,쵸쥬진부츠기가(鳥獣人物戯画) 갑권(60cm x 2262cm),을권(60cm x 2400cm)」
▶ 3. 미켈란젤로(Michelangelo, 1475~1564), 「최후의 심판」(1430cm x 1309cm)
▶ 4. 레오나르도 다 빈치(Leonardo da Vinci, 1452~1519), 「최후의 만찬」(432cm x 886cm)
▶ 5. Zhang Zedaun(張澤端, ), 「청명상하도(清明上河図)」(35cm x 1200cm)
▶ 6. 쇠라(Georges Seurat,1859~1891), 「그랑자트섬의 일요일 오후」(205cm x 305cm)
▶ 7. 르느와르(Pierre-Auguste Renoir, 1841~1919), 「테라스에서」(432cm x 886cm)
▶ 8. 고호(Vincent Willem van Gogh, 1853~1890), 「측백나무와 별이 보이는 길」(92cm x 73cm)
1990년대는 1976년의 스미요시 주택(住吉の長屋)의 충격이후, 80년대의 롯코하우징(六甲の集合住宅I,1981), 타임즈(TIME'S,1984), 교회 연작 등을 거쳐, 안도타다오의 작품이 무르익는 시기로서, 그 중의 하나라고 할 수 있다.
안도 타다오의 작품을 처음 접한 것이 롯코하우징2(六甲の集合住宅II,1993) 였고, 건물 속을 거닐며 계단을 오르내리며 눈물이 날 정도로 감동을 받은 것은 롯코하우징1,2, 빛의교회(光の教会,1989), 물의교회(水の教会,1988) 등 수 없이 많지만 명화의 전당도 그 중 하나였다.
다른 건축가들이 노출 콘크리트 등의 재료와 형태와 공간 등 모든 것을 모사하고 흉내 내었고 내고 있지만, 그것들이 복잡하게 어우러지면서 만들어내며 가슴 속 까지 감동을 주는 건축은 지금까지 안도타다오 작품들이 나에게는 유일했다.
이제 죽기 전에 한번이라도 보고 싶은 작품은 이탈리아의 주세페 테라니(Giuseppe Terragni, 1904~1943, 대표작: 카사 델 파쇼1928,상테리아 유치원1934)라는 건축가의 작품이 유일하다고나 할까. ( 凡人은 발버둥 쳐도 범인이기 때문에 죽기 전에 하나라도 더 설계하고 싶기 보다는, 하나라도 더 보고 싶고, 이름없는 거리를, 골목길을 한 곳이라도 더 거닐어 보고 싶은 게 솔직한 심정이다.)
모세혈관과 같이, 끊임없이 성장하고 쇠퇴하고 변화하는 이름없는 소규모 도시건축들이 만들어내는 도시의 생태의 매력에 빠지게 된 이유, 안도타다오의 초기작품 중의 하나를 우연히 접한 것이 그 계기가 됐고, 내게 처음 건축에 발을 내딛게 한 건축가는 근대 건축의 영원한 거장 꼬르뷔제도 루이스 칸도, 알바 알토도 아닌 바로 안도 타다오였다.
(근대건축의 거장들보다 안도 타다오가 더 뛰어나서가 아니라, 당시 일반인이었던 나에게는 꼬르뷔제 건축보다는 동시대의 건축이 더 접하기 쉽기 때문이었지 않나 싶다.)
쿠로가와 키쇼(黒川紀章,1934~2007, 메타볼리즘 초기그룹)의 중간영역(中間領域)을 예찬한 글을 읽은 이후, 목적없이 걷는 길도 미학적일 수 있다는 것을 보여주는 작품이라고 할 수있다. (야외 전시관 처럼 도자로 재현된 명화를 감상하니까 목적이 없다고 하긴 그렇지만 코르뷔제의 건축적 산책의 신세대 버전이라고나 할까?)
사진들은 아주 오래 전에 찍은 것이라 슬라이드 스캔한 것을 줄인 것이다.
<도판작품감상 안내 팜플렛>
■■■ 다음은 1990년 오사카에서 개최되었던 국제꽃박람회(国際花と緑の博覧会, The International Garden and Greenery Exposition,Osaka,Japan,1990) 기간 전시되었던 안도 타다오의 파빌리온 개요. ■■■
| 작품명 | 명화의 정원(名画の庭, Pavilion 'Garden Of Fine Art') |
| 주요용도 | 박람회 파빌리온 |
| 소재지 | 츠루미 녹지(오사카시 츠루미구) 鶴見緑地(大阪府大阪市鶴見区, Osakashi Tsurumiku) |
| 설계 | 안도 타다오(安藤忠雄, Tadao Ando) |
| 설계기간 | 1988.6. ~ 1989.5. |
| 구조 | A&D設計企画 |
| 주요구조 | 철근 콘크리트조 |
| 시공(건축) | 乃村工藝社 |
| 규모 | 지하 1층, 지상 2층 |
| 부지면적 | ㎡ |
| 건축면적 | 441.54 ㎡ |
| 연면적 | 692.31 ㎡ |
| 건폐율 | % |
| 용적율 | % |
| 주요스팬 | 6200mm × 6200mm(열주) |
| 외부마감 | 지붕:コンクリートスラブの上アスファルト防水 외벽:柱型・梁型ーベニヤ型枠コンクリート打放し、撥水剤塗布 |
■■■ 다음은 박람회 개최 중 작품설명을 의역한 것. ■■■

「국제 꽃박람회(国際花と緑の博覧会)」는 아시아에서 처음으로 개최되는 국제 원예 박람회로서, 21세기를 향한 새로운 원예 정원의 개념 정립을 기본 이념으로 하고 있다.
박람회장에는 세계 각국에서 출품된 다양한 꽃과 식물에 의해 각각의 특징을 살린 정원이 배치된다.
또한 정원과 식물으로의 구성 뿐만 아니라, 빛 · 물 · 바람 등과 같은 자연의 요소로 구성되는 것도 포함된다.
프랜시스 베이컨(Francis Bacon, 1561~1626)이 그의 에세이(수상록随想集,1597) 中 "정원에 대해서"에서 "정원은 인간의 모든 쾌락 중에서 가장 순수하고 깨끗한 것이다. 또한 정원은 인간의 마음에 가장 큰 안식과 휴식을 가져다준다." 라고 말한 것처럼, 정원은 인간의 정신을 순화시키고 상쾌하게 해주는 것이어야 한다고 생각했다.
우선, ‘정원의 원점이란 무엇인가’라는 질문에서부터 시작했다.
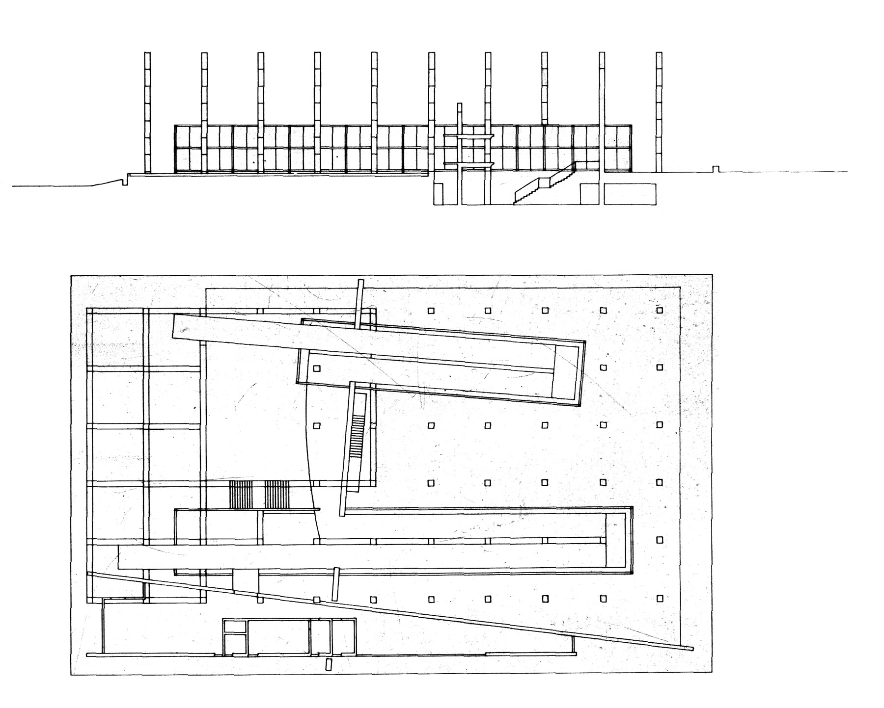
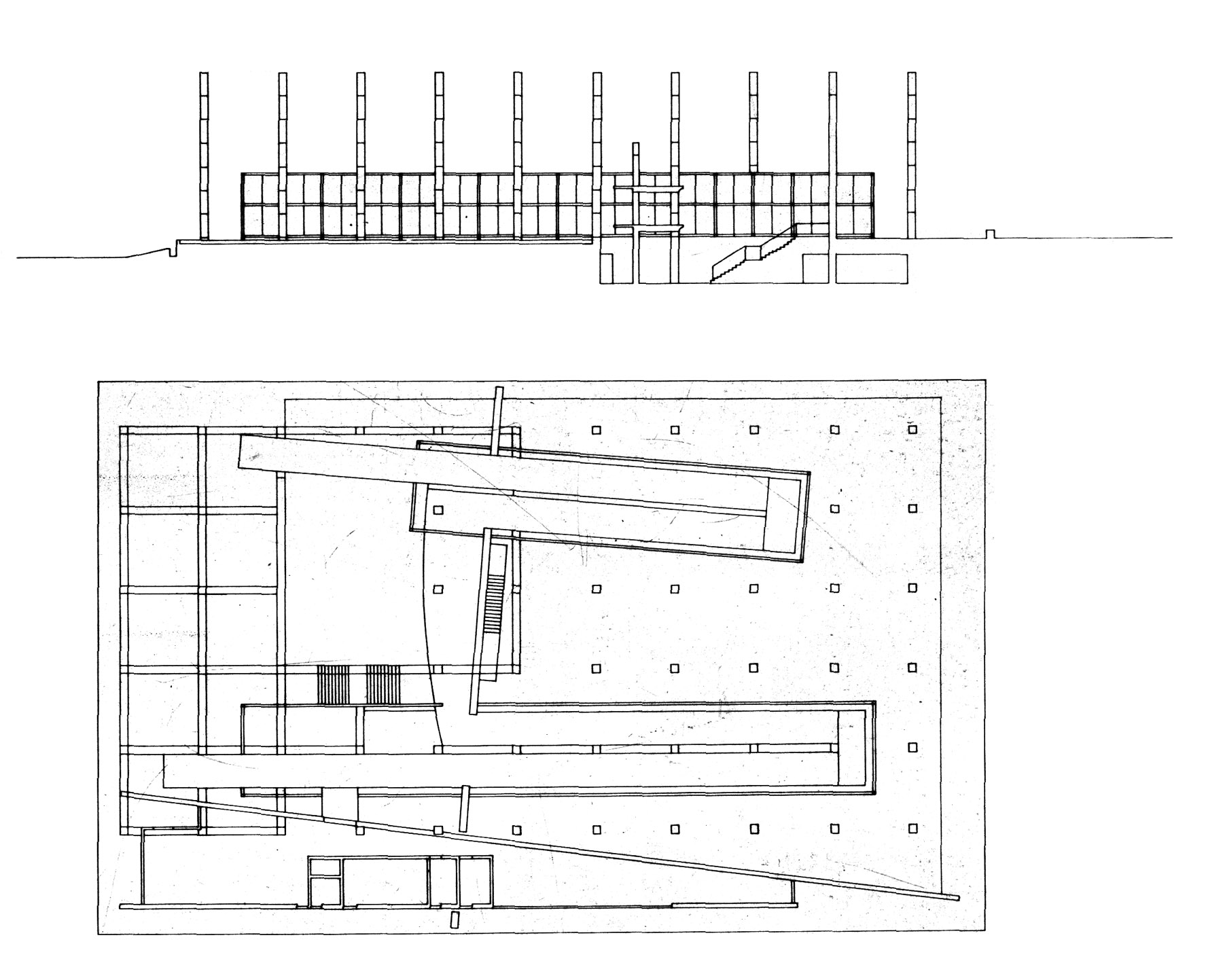
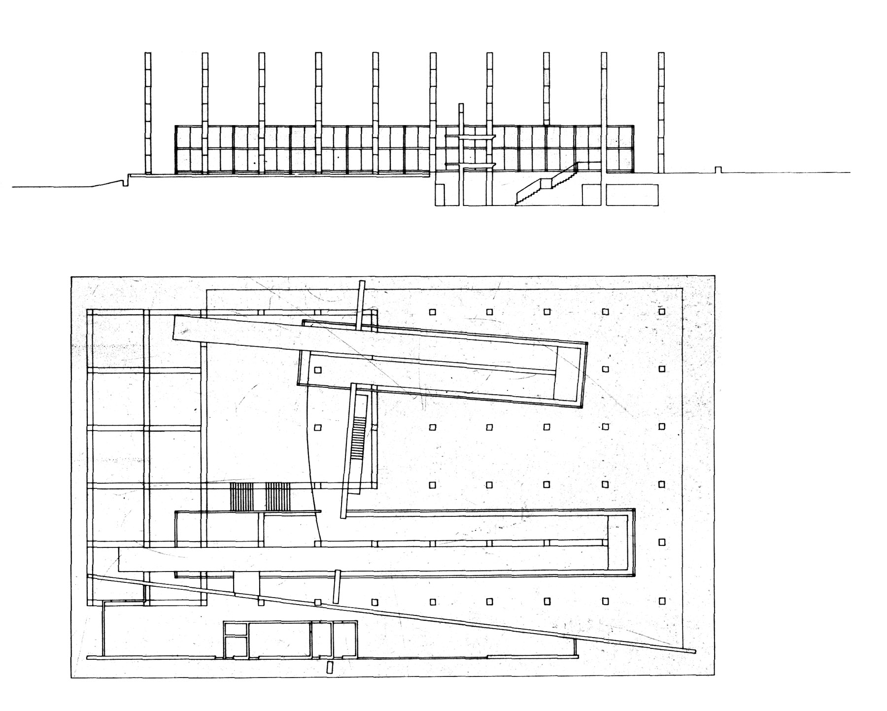
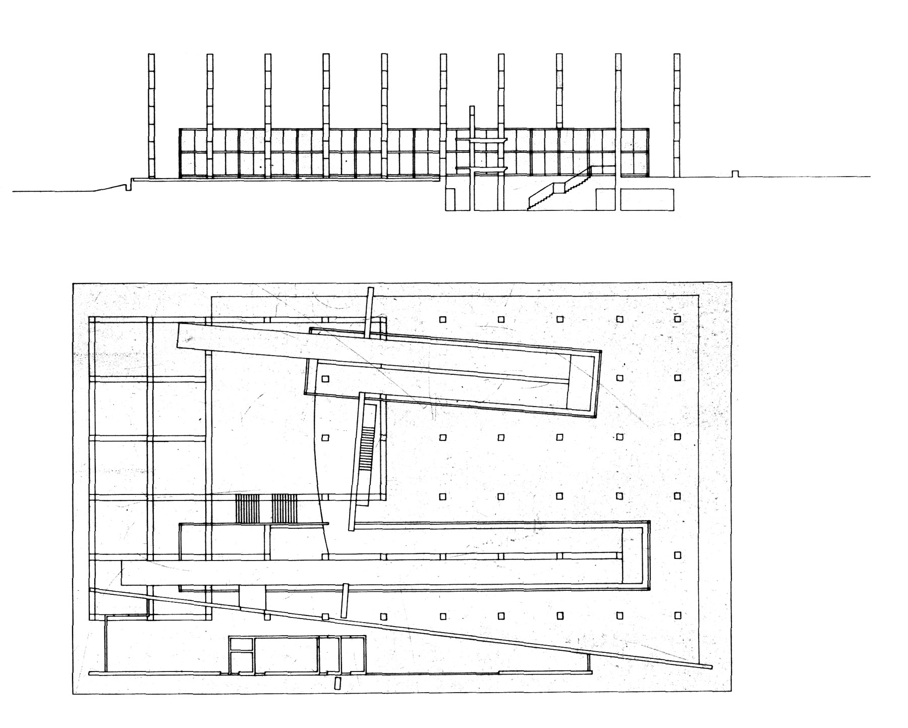
이 정원에서는 자연을 주제로, 물과 바람과 빛을 모티브로 구성했다. 또한 새로운 회유식(回遊式) 정원의 제안이기도 하다.
높이 12.6m의 기둥 45개가 균등하게 배치된 연못을 슬로프가 둘러싼다.
엔트런스에서부터 시작되어 이어지는 슬로프는 기둥의 규칙성과 약간 어긋나 배치된 사이를 올라가다, 기둥이 즐비하게 늘어서 있는 연못에서 반전하면서 되돌아온다.
슬로프는 지붕 없이 유리로 둘러싸인 회랑의 야외 갤러리로 되어있다.
사람들은 슬로프를 돌아다니면서 물의 정원을 산책한다.
파빌리온은, 명칭인 「명화의 정원」에서 알 수 있듯이, 야외 미술관으로서 기능한다.
이 정원은 물의 정원이자 명화의 정원으로, 건물 내에는 내기후성(耐侯性) 도판의 그림이 전시된다.
미켈란젤로의 '최후의 심판', 레오나르도 다빈치의 '최후의 만찬'등을 비롯해 세계의 명화가 현대의 최신 기술인 세라믹 기술에 의해, 실물 크기의 크기로 재현된다.
이들 그림은 벽이나 스크린에 의해 분절된 각각의 전시 공간에 놓인다.
엔트런스 부분에는 大벽화가 선큰가든에 면해서 설치되어, 경사로를 따라서는 그림 두루마리(絵巻)가 전시된다.
여기에서는 각각의 그림을 적합한 환경에서 감상할 수 있도록 그림의 형식과 전시의 형식이 기획되었다.
또한 기존에는 눈높이 등의 동일 레벨에서 밖에 볼 수 없었던 명화들을 다양한 각도에서 감상할 수 있어, 지금까지와는 다른 느낌과 기분을 전달한다.
여기에서는 슬로프를 순회하면서 시시각각 변화해가는 공간을 체험 할 수있다.
빛과 바람을 느끼면서 명화를 감상했다는 기억은, 단순한 시각적인 경험 뿐만 아니라, 體化된 경험으로서 관람객들의 마음 속에 각인 될 것이다.
그리고 이곳을 방문하여, 명화를 봤다는 기억이 사람들의 마음에 영원히 남아있을 것을 바라는 마음이다.
박람회 폐막 후에는, 이들 도판 그림은, 교토 부립 식물원에 이전될 예정이다. 거기에서도, 사람들은 빛과 바람 속에서 명화를 감상 할 수 있기를 기대한다.

