| 작품명 | 힐사이드 테라스(ヒルサイドテラス,Hillside Terrace) |
| 주요용도 | 주택, 점포, 주차장 등 |
| 소재지 | 도쿄도 시부애구 사루가쿠(東京都渋谷区猿楽町, Tokyoto Shibuyaku Sarugakucho) |
| 설계 | 마키 후미히코(槇文彦) |
| 준공 | 1969~1998. |
| 제1기( 1969년 A동 B동) | ![]() |
| 제2기(1973년 C동) | ![]() |
| 제3기(1977년 D동 E동) | ![]() ![]() |
| 제4기(1985년 아넥스 A동 B동) | ![]() ![]() |
| 제5기(1987년 힐사이드 플라자) | ![]() ![]() |
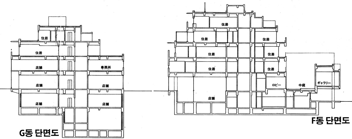
| 제6기(1992년 F동 G동 N동) | ![]() (F,G) ![]() (N) |
| 제7기(1998년 힐사이드 웨스트) | ![]() |














마키 후미히코의 작품을 읽는 키워드 :
"오쿠유키(奥行), 히다(襞,주름), 투명성, 가벼움"
크고 작은 차이는 있지만, 워싱톤 대학 때의 논문(investigations in collective form)도, 그 이후의 소논문이나 글도 모두 이 키워드에 대체로 수렴된다고 생각되며,
군조형(群造形, GROUP FORM), 특유의 계단 공간 디자인, 모서리 디테일 등, 그 중 가장 중요한 한가지로 간추린다면 오쿠유키감(奥行感)이라고 보여지며, 이는 마키 뿐만 아니라 일본 건축의 키워드이라고도 생각된다.
군도형 건축의 선구 - 테즈카야마 타워플라자(帝塚山タワープラザ,Tezukayama Tower Plaza),안도 타다
작품명테즈카야마 타워 플라자 (帝塚山タワープラザ, Tezukayama Tower Plaza)주요용도점포, 타운하우스소재지오사카시 스미요시구 테즈카야마 (大阪府大阪市住吉区帝塚山, Osakafu Osakashi Sumiyosiku Tezuk
protocooperation.tistory.com
참고로 일본건축을 답사하려는 학생분들은 뭐 날씨 기온도 해 뜨는 지는 시간도 서울과 비슷하겠지 하고 스케줄을 짜면 실패하기 쉬우니 조심하기 바란다.(특히 겨울철의 일출 일몰시간)
오사카 및 남부지방은 괜찮지만, 특히 도쿄를 비롯한 수도권, 센다이 등 북쪽을 답사하려면 한국보다 2~3시간 일찍 해가 뜨고, 2~3시간 정도 일찍 해가 떨어져 어두워진다고 생각하고 여유있게 스케줄을 짜면 시간 낭비를 줄일 수 있다.
(아무것도 모르던 시절, 오전 10시 정도에 일어나 씻고 식사하고 느긋하게 움직이다 보면 , 겨울철에는 오후 4~5시 밖에 안됐는데 벌써 어둑어둑해 져서 한 두건 밖에 못 보고 호텔로 돌아왔던 기억이 있다.)
'■현대 일본 도시주택 > 1990~' 카테고리의 다른 글
| 조심스런 지형읽기와 미세조정에 의한 중정형 저층 집합주택 - 타이잔칸(泰山館, Taizankan), 이즈미 코우스케(泉幸甫 Izumi Kousuke), 1990 1차답사 (0) | 2016.05.20 |
|---|---|
| 아반도네 하라 (アバンドーネ原,Abandone Hara), UR도시기구(都市機構),1996 (0) | 2016.05.19 |
| 신택스(SYNTAX), 기린 플라자/ 다카마츠 신(高松伸, Shin Takamatsu) (0) | 2016.04.29 |
| 롯코집합주택1~3기(Rokko Housing) / 안도타다오(安藤忠雄) (2) | 2016.04.28 |
| 밀집시가지내 세가지 타입 평면으로 적층된 소규모 도시집합주택 - One⊃Nine / 미야사키 히토시 (宮崎均, Miyasaki Hitoshi) /1999 (0) | 2015.10.16 |










